EasyManua.ls Logo

Midea MHC-V8W/D2N8-B - Page 9

Midea MHC-V8W/D2N8-B
113 pages
Print Icon
To Next Page IconTo Next Page
To Next Page IconTo Next Page
To Previous Page IconTo Previous Page
To Previous Page IconTo Previous Page
Loading...
M thermal Mono
202004 7
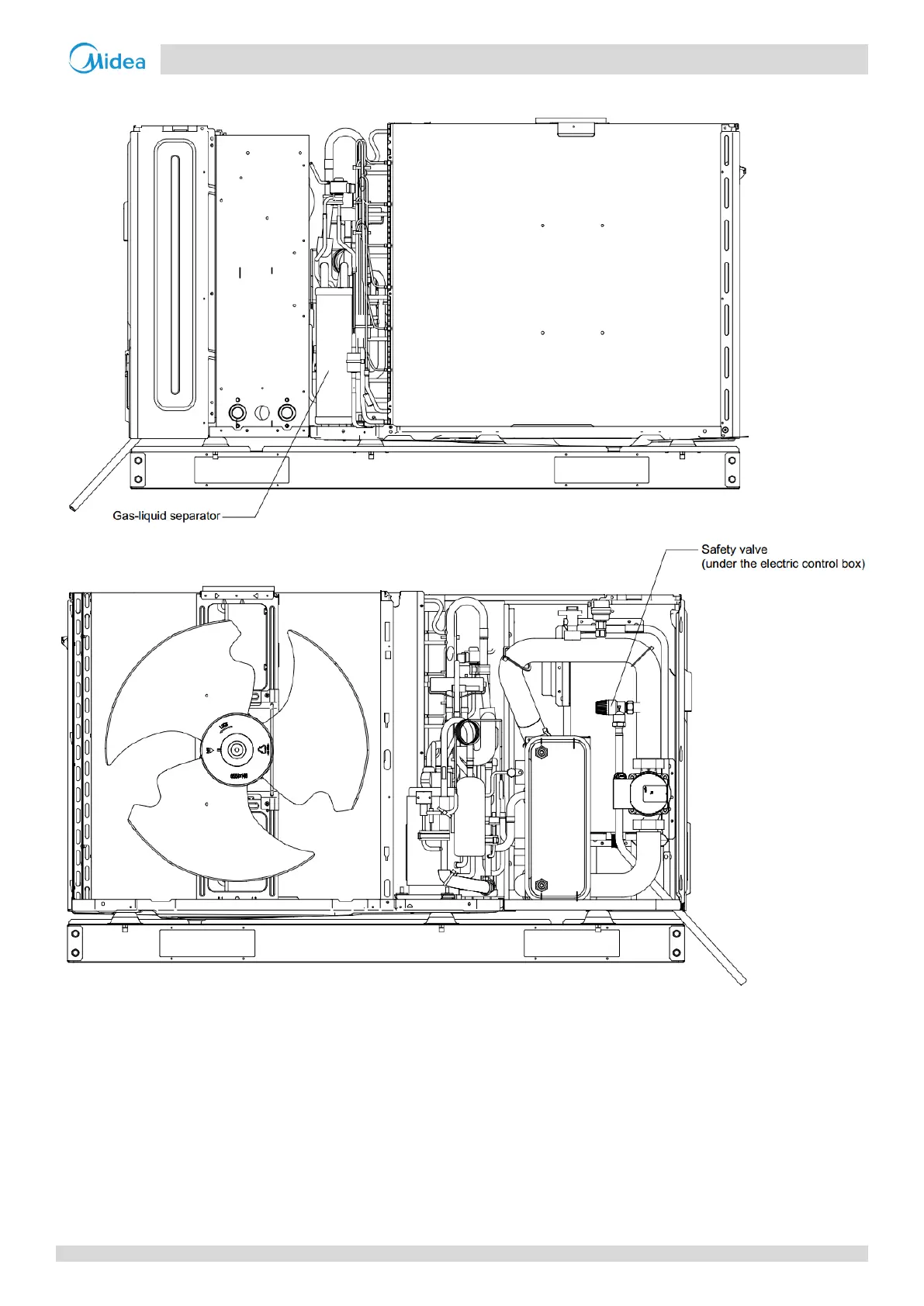
Part 2 - Component Layout and Refrigerant Circuits
Figure 2-1.3: MHC-V4(6)W/D2N8-B
Midea CAC Confidential

Other manuals for Midea MHC-V8W/D2N8-B

Related product manuals