EasyManua.ls Logo

Midea MHG-60HWFN1-MW - Adjust the Air Inlet Direction; Fresh Air Duct Installation; Compact Cassette Indoor Unit Installation

Midea MHG-60HWFN1-MW
247 pages
Print Icon
To Next Page IconTo Next Page
To Next Page IconTo Next Page
To Previous Page IconTo Previous Page
To Previous Page IconTo Previous Page
Loading...
158
NOTE: 1.Do not put the connecting duct weight
on the indoor unit.
2.When connecting duct, use inflammable
canvas tie-in to prevent vibrating.
3. Insulation foam must be wrapped outside the
duct to avoid condensate. An internal duct
underlayer can be added to reduce noise,
if the end-user requires.
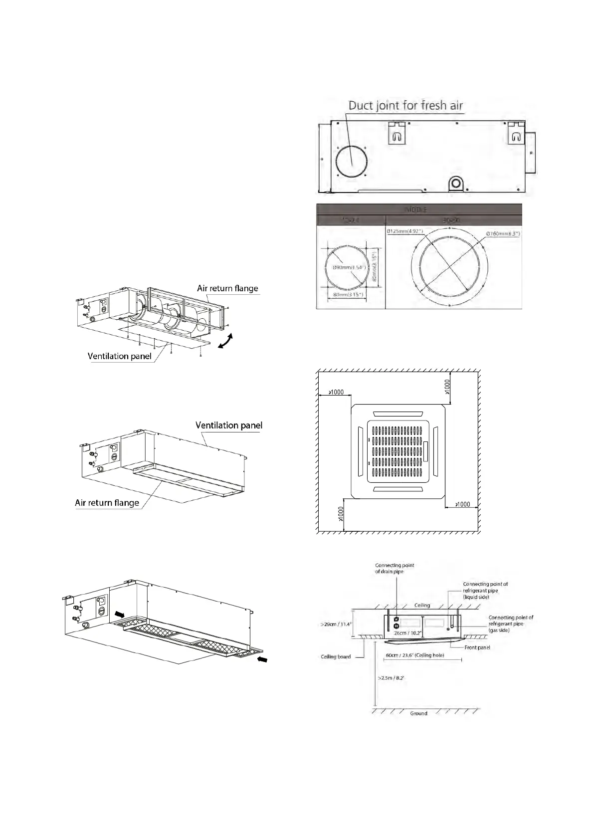
14.2.1.5 Adjust the air inlet direction (From
rear side to under-side)
1.Take off ventilation panel and flange, cut off
the staples at side rail
2.Change the mounting positions of ventilation
panel and air return flange .
3. When installing the filter mesh, fit it into the
flange as illustrated in the following figure.
NOTE: All the figures in this manual are for
demonstration purposes only. The air
conditioner you have purchased may be slightly
different in design, though similar in shape.
14.2.1.7 Fresh air duct installation
Dimension :
14.2.2 Compact cassette indoor unit
installation
14.2.2.1 Service space for indoor unit
14.2.2.2 Bolt pitch

Table of Contents

Related product manuals