EasyManua.ls Logo

Midea MKA-V600F - Wiring

Midea MKA-V600F
36 pages
Print Icon
To Next Page IconTo Next Page
To Next Page IconTo Next Page
To Previous Page IconTo Previous Page
To Previous Page IconTo Previous Page
Loading...
Midea DC Fan Coil Unit
33
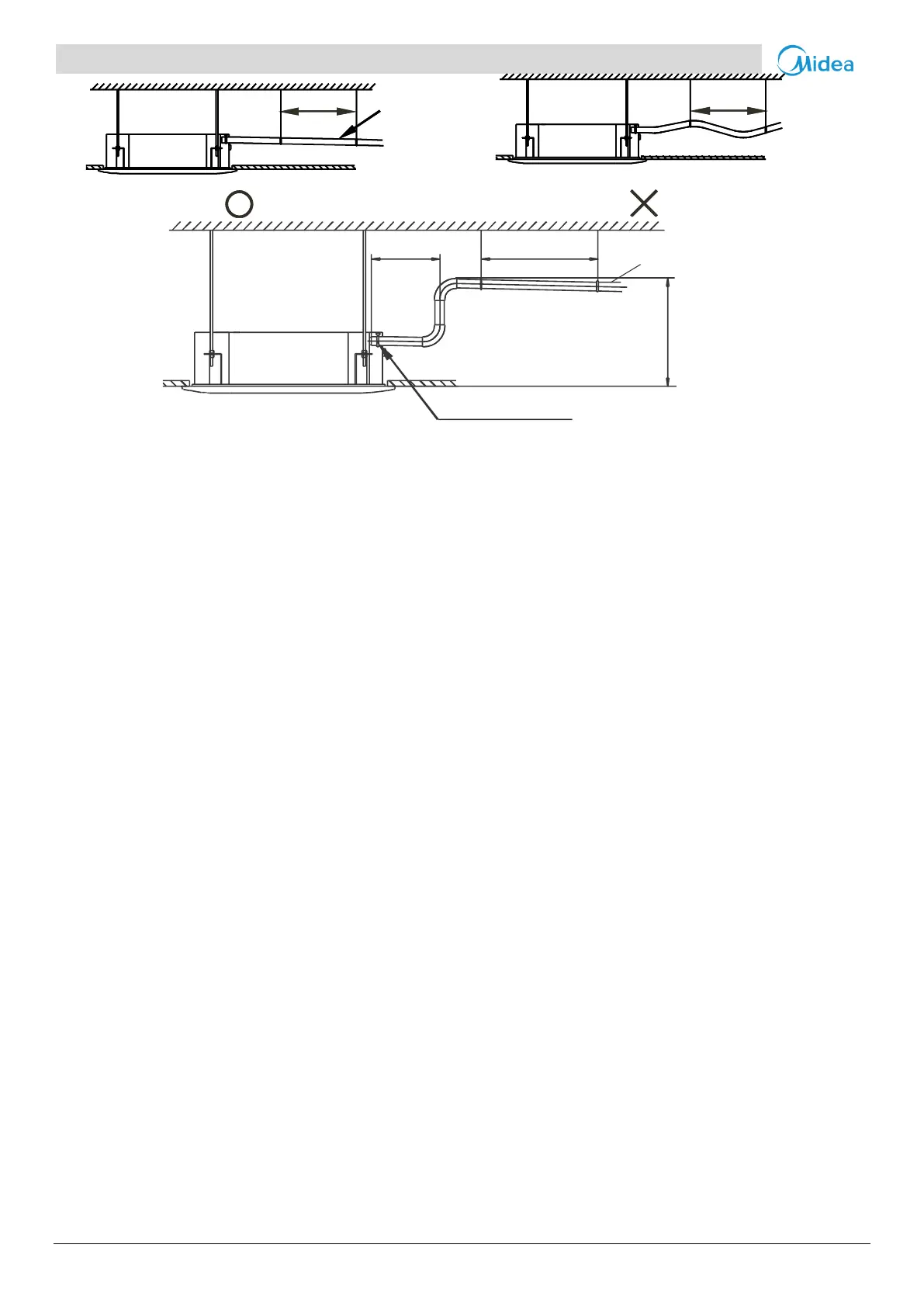
Drainage test
Check whether the drainpipe is unhindered
New built house should have this test done before paving the ceiling.
1. Remove the test cover, and stow water of about 2000ml to the water receiver through the stow tube.
2. Turn on the power, and operate the air conditioner under the "COOLING" mode. Listen to the sound of the
drain pump. Check whether the water is discharged well (a lag of 1min is allowed before discharging,
according to the length of the drain pipe), and check whether water leaks from the joints.
Cautions: If there is any malfunction, please resolve it immediately.
3. Stop the air conditioner for three minutes, check if everything is ok. If the drain hose is located
unreasonable, water overflow will cause the Alarm indicator lamp flashing (For both cooling and heating type
or cooling only type), even the water leak out from the water receiver.
4. Check the drain pump whether drain water immediately when alarm sound for the high water lever. If the
water lever can't come down below to the limited water lever, the air conditioner will stop. Restart it until turn
off the power and drain off all the water.
5. Turn off the power, drain the water away.
The drain plug is used to empty the water-receiver for maintenance of the air conditioner. Please stuff it
imposition at all times during operation to avoid leakage.
12.7 Wiring
Caution:
The air conditioner should use separate power supply with rated voltage.
The external power supply to the air conditioner should have ground wiring, which is linked to the ground
wiring of the indoor and outdoor unit.
The wiring work should be done by qualified persons according to circuit drawing.
An all-pole disconnection device which has at least 3mm separation distance in all pole and a residual
current device (RCD) with the rating of above 10mA shall be incorporated in the fixed wiring according to
the national rule.
The appliance shall be installed in accordance with national wiring regulations.
Be sure to locate the power wiring and the signal wrings well to avoid cross-disturbance.
Do not turn on the power until you have checked carefully after wiring.
Note: Remark per EMC Directive 2004/108/EC for to prevent flicker impressions during the start of the
compressor (technical process), following installation conditions do apply.
1. The power connection for the air conditioner has to be done at the main power distribution. The
distribution has to be of low impedance; normally the required impedance reaches at a 32A fusing point.
2. No other equipment has to be connected with this power line.
3. For detailed installation acceptance please refer to your power supplier, if restrictions do apply for
products like washing machines, air conditioners or electrical ovens.
4. For power details of the air conditioner refer to the rating plate of the product.
0.81.0 m
a
Gradient:
higher than 1/100
>1.0 m
b
Fig.6-1
b
<200mm
Lean over 1/100
Pump-pipe clasp
(the fittings)
0.8-1.0m
Fig.6-2
Max. 1000mm

Related product manuals