EasyManua.ls Logo

Midea MKT3H-1600G100 - Dimension

Midea MKT3H-1600G100
28 pages
Print Icon
To Next Page IconTo Next Page
To Next Page IconTo Next Page
To Previous Page IconTo Previous Page
To Previous Page IconTo Previous Page
Loading...
MCAC-KTSM-2012-03 High static pressure ducted
FCU
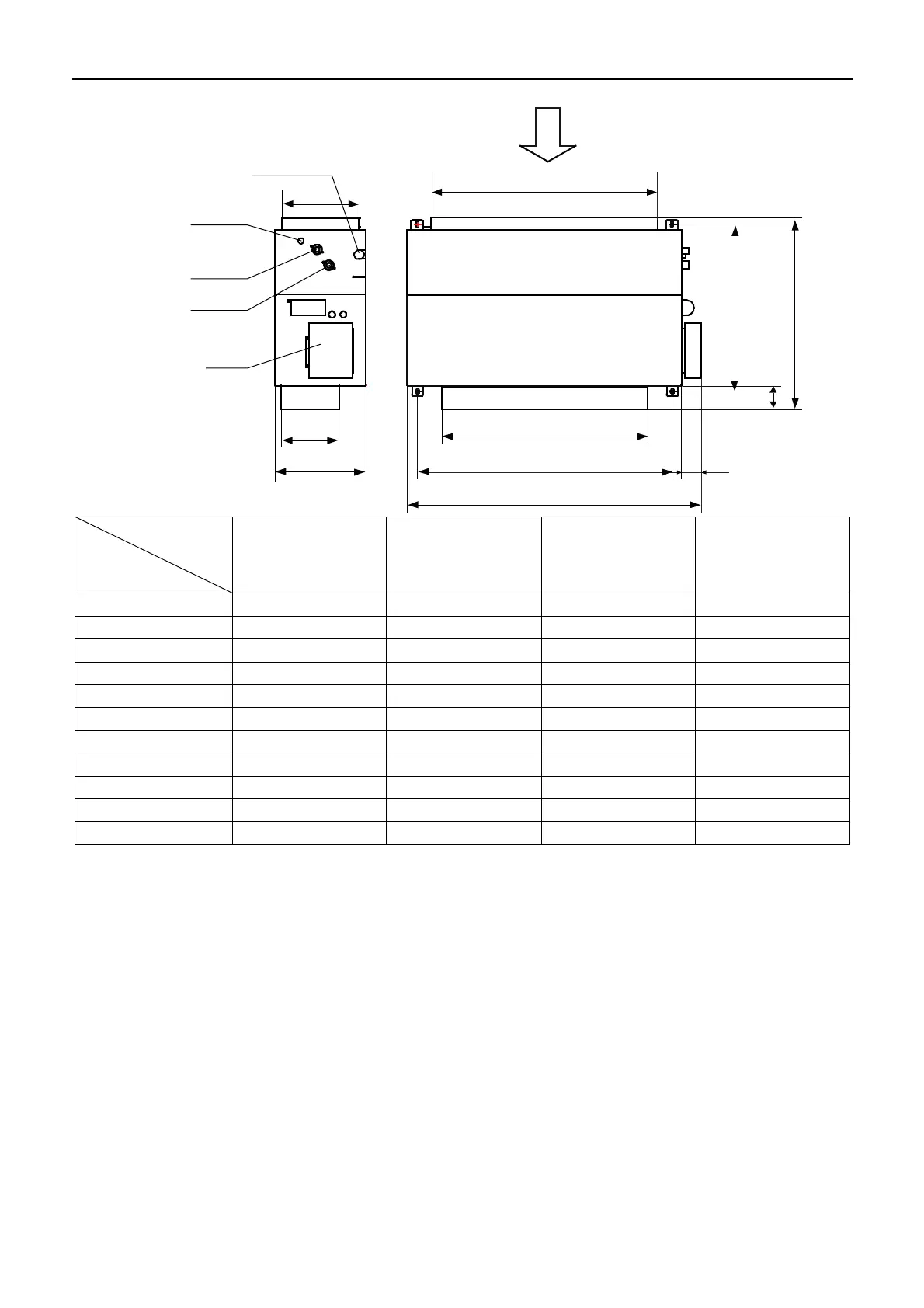
Dimension 7
7. Dimension
Model
Size
MKT3H-800G70
MKT3H-1000G70
MKT3H-1200G70
MKT3H-1400G70
MKT3H-800EG70
MKT3H-1000EG70
MKT3H-1200EG70
MKT3H-1400EG70
MKT3H-1600G70
MKT3H-1800G70
MKT3H-2200G70
MKT3H-1600EG70
MKT3H-1800EG70
MKT3H-2200EG70
A
946
946
1290
1290
B
816
876
809
874
C
400
400
400
400
D
778
778
1118
1118
E
767
767
765
765
F
306
306
900
900
G
219
219
249
249
H
88
88
88
88
I
37
97
39
104
J
338
338
320
320
K
512
512
995
995
Air inlet
A
C
G
D
E
B
I
H
F
WaterinletRC3/4
WateroutletRC3/4
Air release
valve
Condensation
water outlet ZG5/4
Terminal board
J
K

Related product manuals