EasyManua.ls Logo

Midea MUE-24CRN1-Q - Dimensions

Midea MUE-24CRN1-Q
264 pages
To Next Page IconTo Next Page
To Next Page IconTo Next Page
To Previous Page IconTo Previous Page
To Previous Page IconTo Previous Page
Loading...
Dimensions
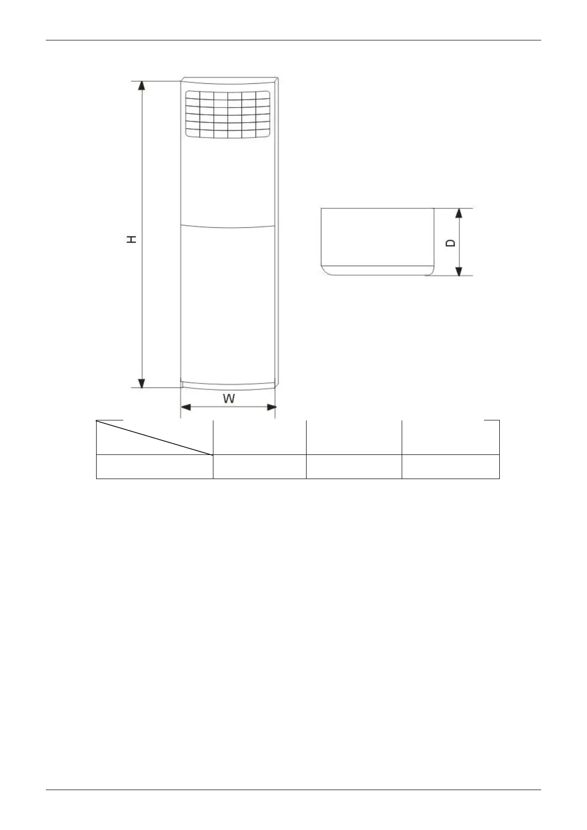
160 E2 Floor-standing Type
2. Dimensions
Dimension
Mode
W(mm) D(mm) H(mm)
60
605 385 1895

Table of Contents

Related product manuals