EasyManua.ls Logo

Midea MUE-36CRN1-RB4 - Service Space

Midea MUE-36CRN1-RB4
264 pages
To Next Page IconTo Next Page
To Next Page IconTo Next Page
To Previous Page IconTo Previous Page
To Previous Page IconTo Previous Page
Loading...
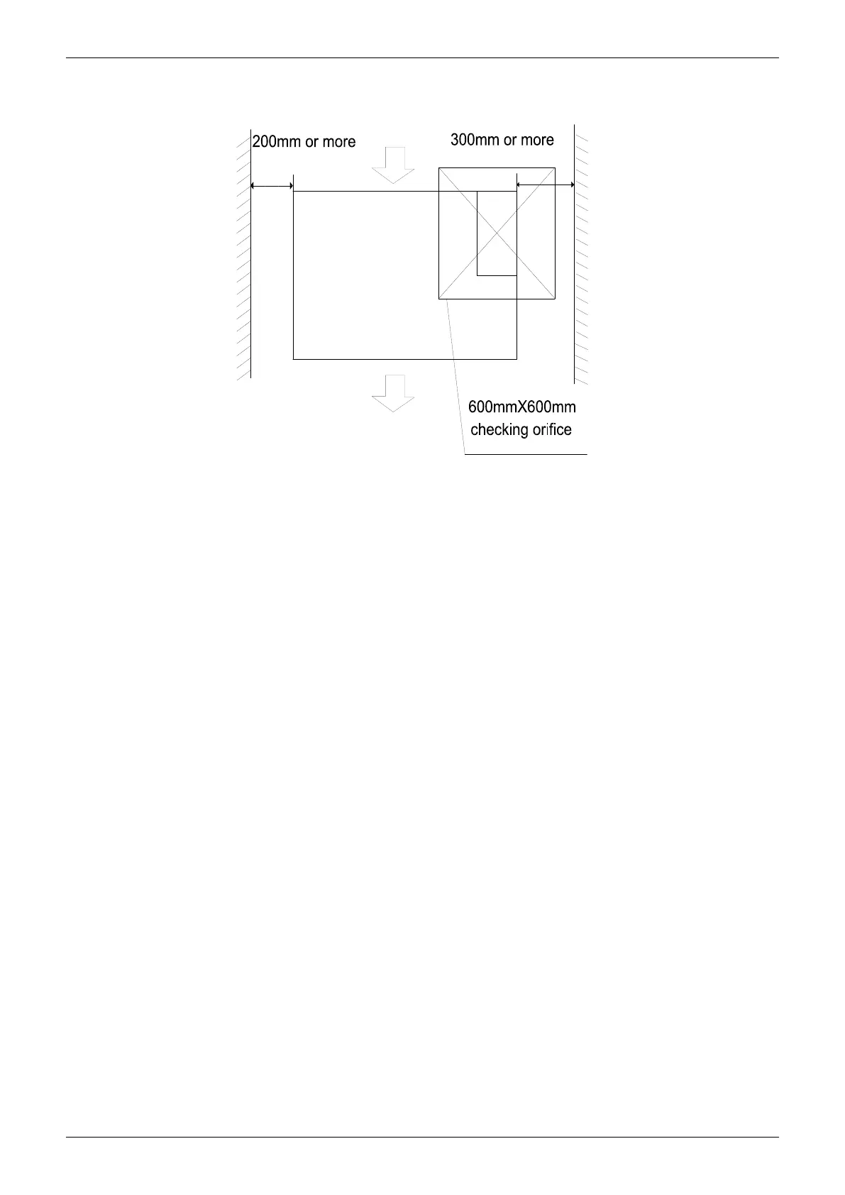
Service Space
42 Duct Type
3. Service Space
Ensure enough space required for installation and maintenance.

Table of Contents

Related product manuals