EasyManua.ls Logo

Midea MUE-60CRN1-R - Dimensions

Midea MUE-60CRN1-R
264 pages
To Next Page IconTo Next Page
To Next Page IconTo Next Page
To Previous Page IconTo Previous Page
To Previous Page IconTo Previous Page
Loading...
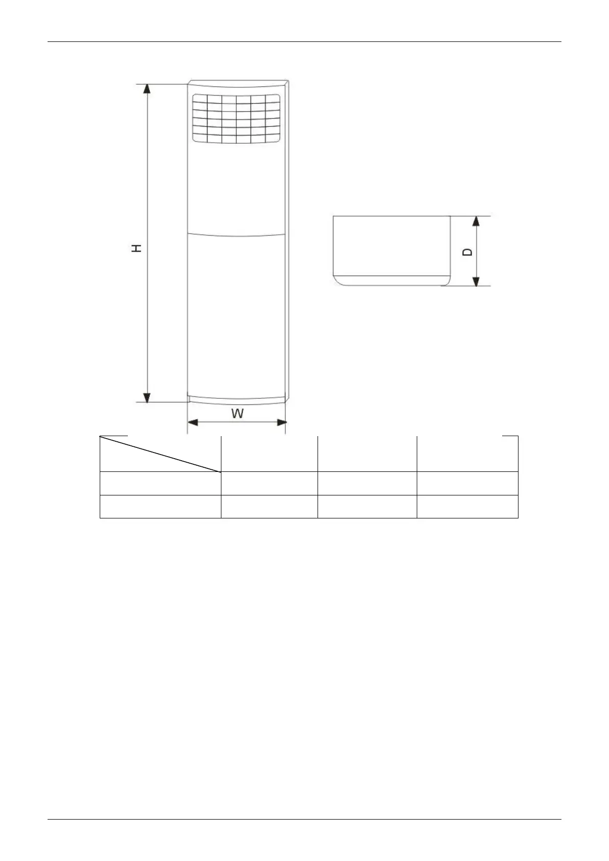
Dimensions
S4 Floor-standing Type 149
2. Dimensions
Dimension
Mode
W(mm) D(mm) H(mm)
24 500 255 1660
48 540 370 1780

Table of Contents

Related product manuals