EasyManua.ls Logo

Midea SMK-D140HHN1-3 - Page 47

Midea SMK-D140HHN1-3
83 pages
Print Icon
To Next Page IconTo Next Page
To Next Page IconTo Next Page
To Previous Page IconTo Previous Page
To Previous Page IconTo Previous Page
Loading...
High Temperature Hydro Module
202003 45
Service
Manual
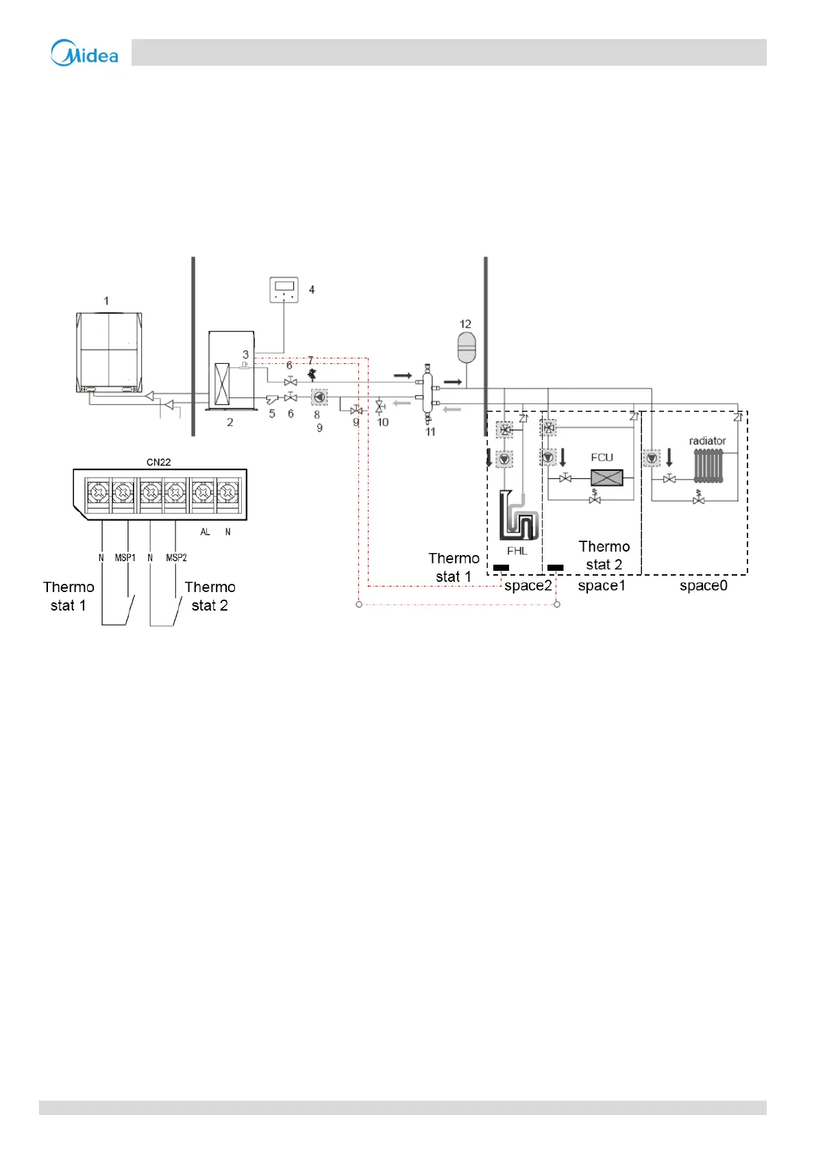
13.1.3 Multiple Set Point Function
When the hydraulic module is connected to multiple terminals that raise different water temperature requirements, you need
to use the multiple set point function. The multiple set point function is used to set the desired water outlet temperature of
space1 and space2. (For more information, please read the Engineering Data.)
The hydraulic module will calculate the space that requires energy and operate at the highest water temperature among the
water outlet temperature requirements.
Note: For space0, water temperature is set on the main interface.
Notes:
1. The hydraulic module can meet the control requirements at different water temperatures. You must connect an external
third-party temperature reduction device to the circuits of space1 and space2.
2. The multiple set point switch can be set on the FOR SERVICEMAN interface of the wired controller. If multiple set point
1=YES or multiple set point 2=YES, this indicates that multiple set points exist.
3. On the wired controller, multiple set point 1 required temp. is corresponding to the required water temperature of multiple
set point 1, while multiple set point 2 required temp. is corresponding to the required water temperature of multiple set point
2.
4. The energy demand of space1 is determined according to the level signal of the external thermostat 1 of the main control
board. If the level is low, it indicates that there is an energy demand, while if the level is high, it indicates that energy is not
demanded.
5. Energy demand of space2 is determined according to the level signal of the external thermostat 2 of the main control board.
If the level is low, it indicates that there is an energy demand, while if the level is high, it indicates that energy is not demanded.

Other manuals for Midea SMK-D140HHN1-3

Related product manuals