EasyManua.ls Logo

Midea Super DC Series - Page 133

Midea Super DC Series
229 pages
Print Icon
To Next Page IconTo Next Page
To Next Page IconTo Next Page
To Previous Page IconTo Previous Page
To Previous Page IconTo Previous Page
Loading...
Indoor unit installation
Installation 131
3.2 A5 duct indoor unit installation
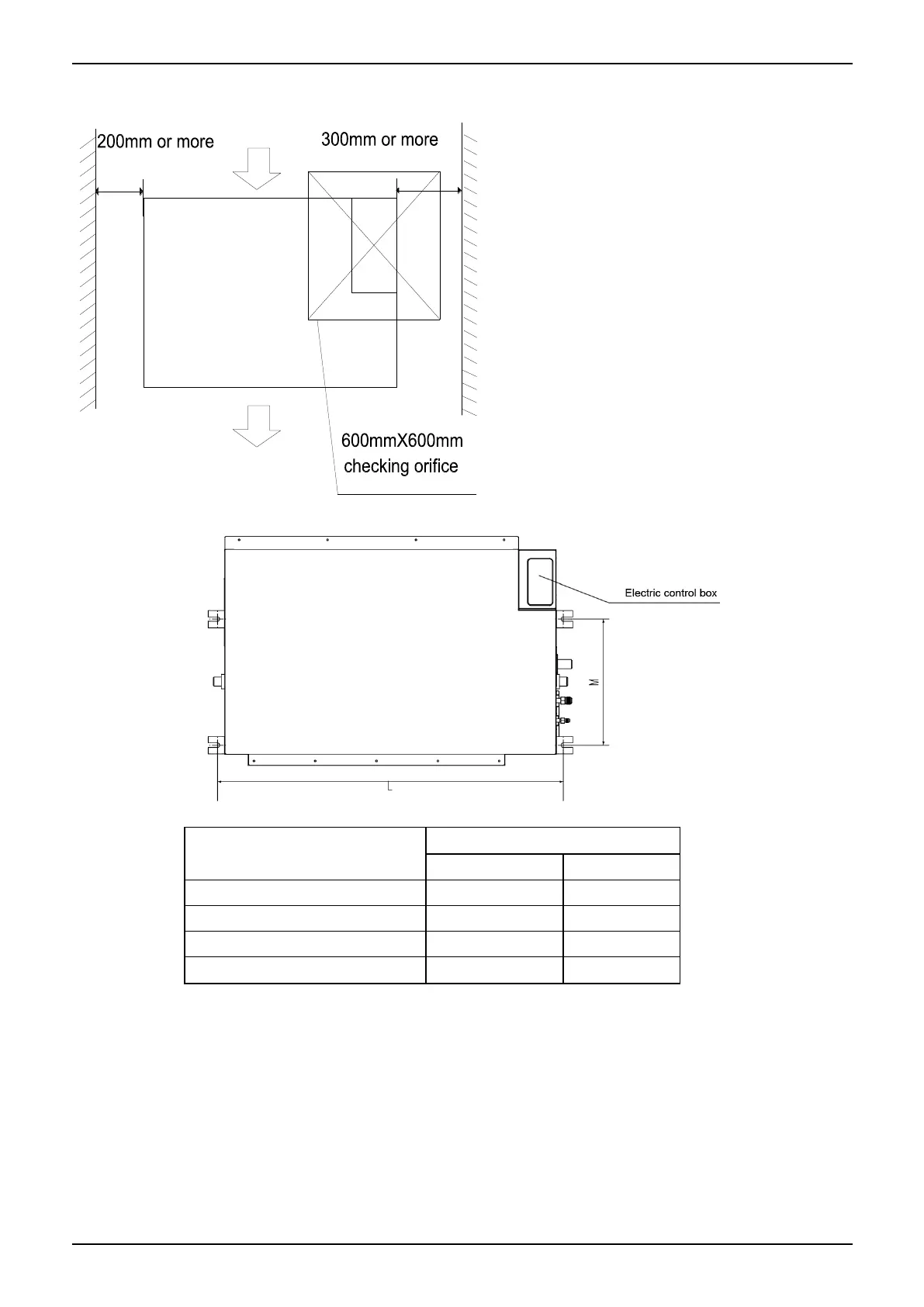
3.2.1 Service space for indoor unit
3.2.2 Bolt pitch
Capacity(KBtu)
Size of outline dimension mounted lug
L
M
12
740
350
18/24
960
350
30
1180
490
36~60
1240
500
3.2.3 Install the pendant bolt
Select the position of installation hooks according to the hook holes positions showed in upper picture.
Drill four holes of Ø12mm, 45~50mm deep at the selected positions on the ceiling. Then embed the
expansible hooks (fittings).

Table of Contents

Related product manuals