EasyManua.ls Logo

Midea Super DC Series - Page 140

Midea Super DC Series
229 pages
Print Icon
To Next Page IconTo Next Page
To Next Page IconTo Next Page
To Previous Page IconTo Previous Page
To Previous Page IconTo Previous Page
Loading...
Indoor unit installation
Installation 138
If the ceiling is extremely high, please determine the length of the installation hook depending on the real
situation.
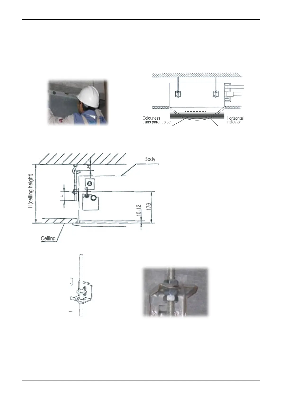
3.4.4 Install the main body
Make the 4 suspender through the 4 hanger of the main body to suspend it. Adjust the hexangular nuts on
the four installation hooks evenly, to ensure the balance of the body. Use a leveling instrument to make sure
the levelness of the main body is within ±1°.
Adjust the position to ensure the gaps between the body and the four sides of ceiling are even. The body's
lower part should sink into the ceiling for 10~12 mm. In general, L is half of the screw length of the
installation hook.
Locate the air conditioner firmly by wrenching the nuts after having adjusted the body's position well.
3.4.5 Install the panel
Remove the grille

Table of Contents

Related product manuals