EasyManua.ls Logo

Midea V6R Series - Page 48

Midea V6R Series
131 pages
Print Icon
To Next Page IconTo Next Page
To Next Page IconTo Next Page
To Previous Page IconTo Previous Page
To Previous Page IconTo Previous Page
Loading...
V6R VRF 50/60Hz
47
Part 2 - Outdoor Unit Engineering Data
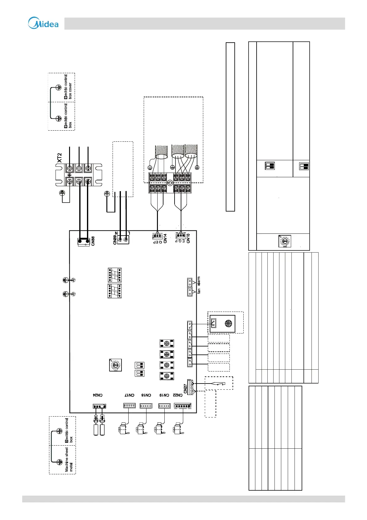
Figure26.2:MS01wiringdiagram
T1C1
Power in
 Outdoor
/Upstream MS
Downstream MS
T2C2
Blue
Red
XS2 XS1
XP2 XP1
The wiring picture shown is for reference only, actual product may vary.
Guide for main board dial code
CODE NAME
XS1XS2 Connectors
XP1XP2 Connectors
T1C1T2C2
Temperature Sensor
EEV Electronic ExpansionVa l ve
Error Code
E3
E4
Communication failure between MS and master outdoor unit
E2
F7 Main power off
DIP switch for number of refrigerant
leakage sensors
Note,Under normal circumstances,
MS is connected to the closing signal
output by the refrigerant sensor.
When Ms detects the opening signal
of the refrigerant sensor, it indicates
that there is refrigerant gas leakage.
ENC1
POWER
EBV-B
SW1 SW2
DSP1
DSP2
EBV-A T1C1T2C2
S1S2
ON
SW4
ENC1
S1-1 OFF: refrigerant leakage function invalid. (default)
ON: connected to refrigerant leakage sensor.
S1-2 OFF: dry contact is always closed, and opened when being
triggered by refrigerant leakage. (default)
ON: dry contact is always opened, and closed when being triggered by
refrigerant leakage.
S2
ON
SW3
EBV-C EBV-BEEV
EBV-A
EBV-C
EEV
Main Board
“ +5V GND +12V ”
ONLY USED
FOR TESTING
ON/OFF
SWITCH
CN7 CN6 CN3CN5 CN4 CN1 CN2
Malfunction of subcooler outlet thermistor(T1C1)
EEPROM error
UPS
EBV-A
EBV-C
Malfunction of subcooler inlet thermistor(T2C2)
E7
F6
Electronic ball valve connection failure
F9
A1
FE
MS has no address when first powered on
Overload error(The total capacity of indoor unit connected by
MS is more than 12 )
Refrigerant leakage protection or ENC1 DIP switch value >5
Electronic BallValve
S1
ON
XT1
XT1
XT2
Refrigerant
leakage sensor
Te r m i n a l B l o c k
Te r m i n a l B l o c k
( Current range: 0-1A)
Voltage range: 0-24V AC/DC)
L
N
M-O
M-I
P Q E
T
o
i
n
d
o
o
r
u
n
i
t
s
c
o
m
m
.
b
u
s
White
Bule
Yellow
Gray
LN
Black
Black
S1-1 OFF: low temperature cooling function valid.(default)
ON: low temperature cooling function invalid.
S2-2 Reserved
P Q E P Q E
Refrigerant
leakage sensor
Refrigerant
leakage sensor
Refrigerant
leakage sensor
Y/G
COM NC
Refrigerant
leakage sensor
COM ON/OFF
(Voltage range:0-12V/DC)
Y/G

Other manuals for Midea V6R Series

Related product manuals