EasyManua.ls Logo

Midmark Preva - Page 13

Default Icon
138 pages
Print Icon
To Next Page IconTo Next Page
To Next Page IconTo Next Page
To Previous Page IconTo Previous Page
To Previous Page IconTo Previous Page
Loading...
Installation Options
Preva
6
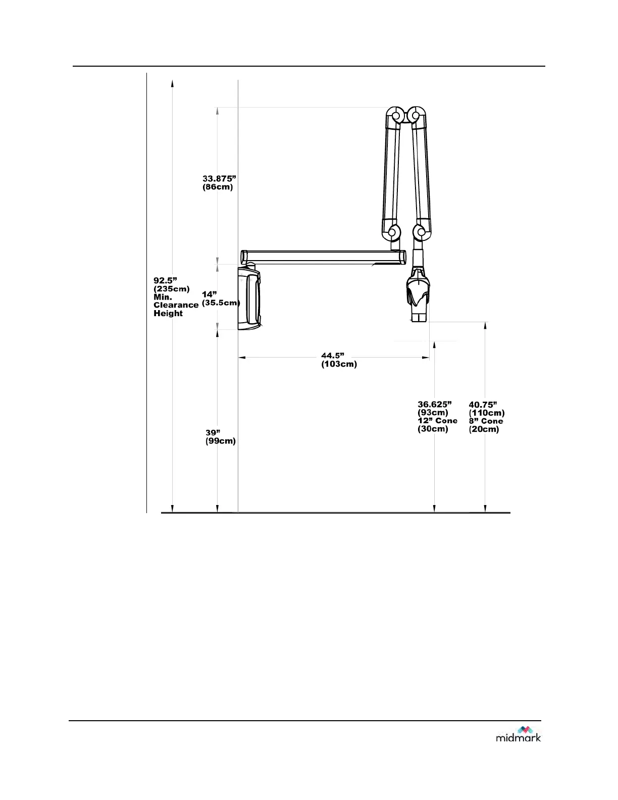
Figure 3
Cabinet
Mounting
Dimensions
82" reach not recommended for cabinet mount

Other manuals for Midmark Preva

Related product manuals