EasyManua.ls Logo

Miele DA 199-2 - Retaining plate installation guide; Retaining plate A fitting steps

Miele DA 199-2
32 pages
Print Icon
To Next Page IconTo Next Page
To Next Page IconTo Next Page
To Previous Page IconTo Previous Page
To Previous Page IconTo Previous Page
Loading...
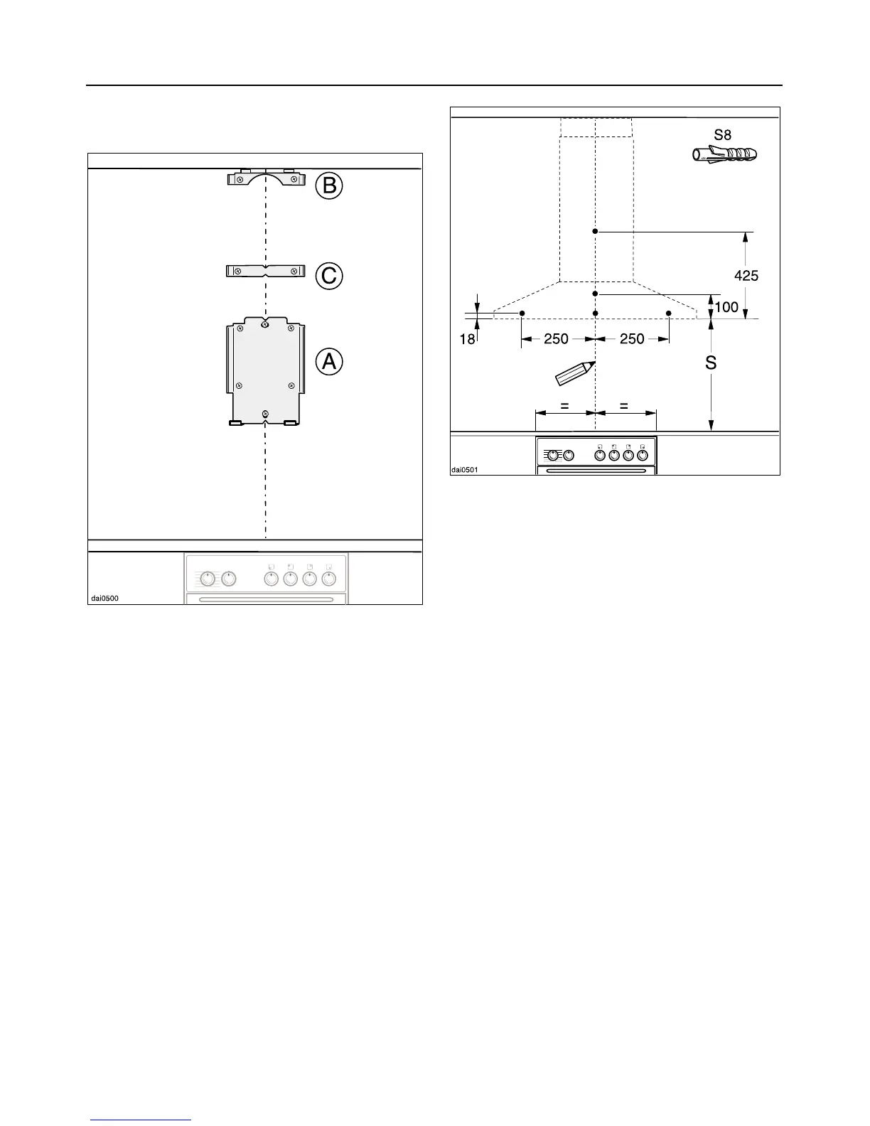
Retaining plates
There are three retaining plates A, B and
C for fixing the cooker hood to the wall.
First of all drill the holes for attaching the
canopy and for fitting retaining plate A.
^ Before fitting the retaining plate draw
a vertical line centrally above the hob
on the back wall.
^ Mark measurement S from the hob
surface upwards (see "Appliance di-
mensions"). This marks the height of
the lower rim of the cooker hood.
^
DA 196-2:
Drill an 8 mm C hole on the middle
line, 18 mm above the height marked
S. Insert an S8 plug into the hole.
^
DA 199-2:
Drill two 8 mm C holes, 18 mm above
the height marked S and 250 mm right
and left of centre. Insert S8 plugs.
Retaining plate A
^
Drill two 8 mm C holes, one at
S + 100 mm and one at S + 425 mm
on the centre line for the retaining
plate (see "Appliance dimensions").
Insert S8 plugs.
Installation
18

Related product manuals