EasyManua.ls Logo

Miele DA 249-3 - Page 28

Miele DA 249-3
36 pages
Print Icon
To Next Page IconTo Next Page
To Next Page IconTo Next Page
To Previous Page IconTo Previous Page
To Previous Page IconTo Previous Page
Loading...
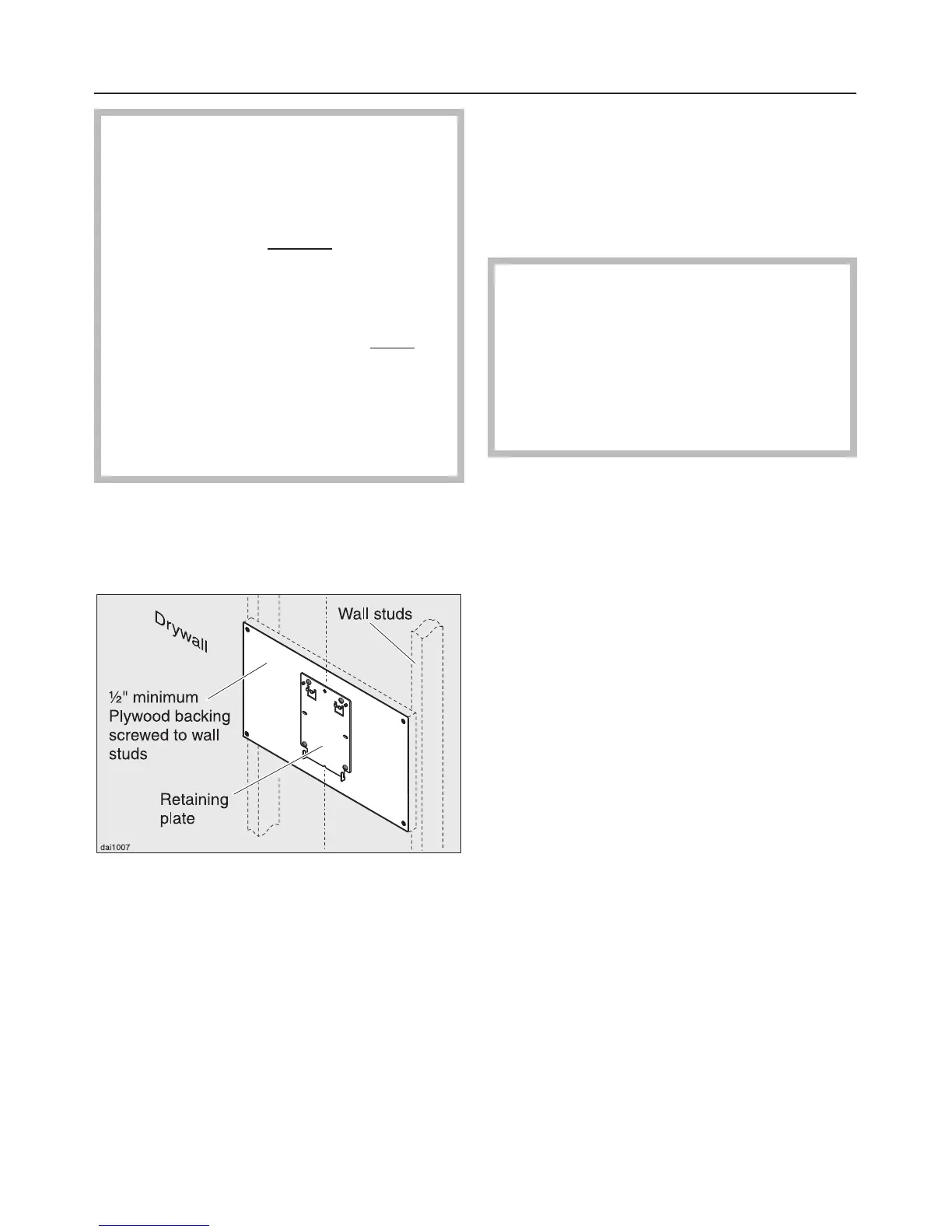
The majority of the weight of the
installed ventilation system will be
supported by the lower retaining
plate. It must be firmly attached to
the stud framing behind
the drywall.
If studs are not available in the
required locations, a plywood
backing (min.
1
/
2
" (13 mm) thick)
spanning at least two studs must
be
installed. Failure to adequately
support the weight as stated may
result in the ventilation system falling
off the wall, causing personal injury
and property damage.
(If plywood backing is not needed,
proceed to the included installation
sheet.)
To install a plywood backing
^
Determine and mark the location of
the retaining plate for the canopy as
outlined on the installation sheet.
^
Make a cutting line 3" (76 mm) above
and 3" (76 mm) below the outline of
the retaining plate.
^
Find the studs to the left and right of
the mounting location by tapping the
wall or using a stud finder.
^
Mark a vertical cutting line along the
center of each stud.
Be careful not to damage any wiring
or plumbing that may be located
behind the wall. Make sure that the
power supply to the area where this
installation is being performed has
been turned off at the breaker panel
before cutting into the wall.
^ Remove the drywall between the
cutting lines and replace it with
plywood of a matching thickness
(min.
1
/
2
" (13 mm) thick). Tape the
joints and refinish the wall.
^ Proceed to the included installation
sheet to complete the installation.
Plywood backing
28

Related product manuals