EasyManua.ls Logo

Miele DA3180SS - Page 26

Miele DA3180SS
40 pages
Print Icon
To Next Page IconTo Next Page
To Next Page IconTo Next Page
To Previous Page IconTo Previous Page
To Previous Page IconTo Previous Page
Loading...
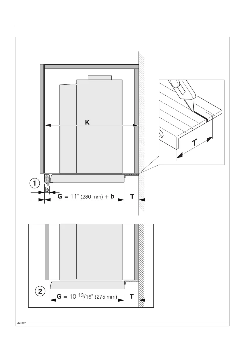
Installation
26

Related product manuals