EasyManua.ls Logo

Miele KF 7544 - Building In the Appliance; Kitchen Integration Guidelines

Miele KF 7544
44 pages
Print Icon
To Next Page IconTo Next Page
To Next Page IconTo Next Page
To Previous Page IconTo Previous Page
To Previous Page IconTo Previous Page
Loading...
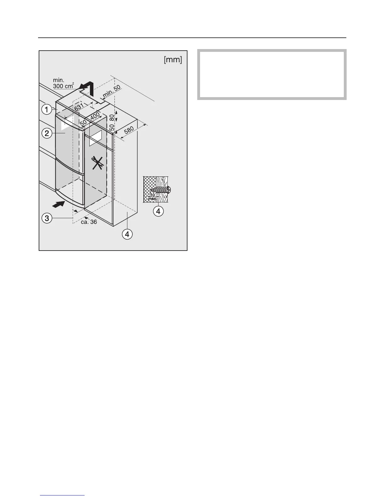
The appliance can be installed in a
kitchen run. To match the height of the
rest of the kitchen, the appliance can
be fitted with a suitable top box a.
A ventilation gap of at least 50 mm
depth must be allowed for behind the
appliance for air to circulate.
The cross section of the air outlet under
the room ceiling must be at least 300
cm
2
to ensure that air can circulate
without hindrance. Otherwise the appli
-
ance has to work too hard resulting in
an increase in electricity consumption.
The larger the cross section, the more
efficient the appliance.
The air inlet and outlet must not be
covered or blocked in any way.
They should be dusted on a regular
basis.
When built into a kitchen run (max.
depth 580 mm) the appliance can be
installed directly next to a kitchen furni
-
ture housing unit. The appliance door
b will protrude in front of furniture
fronts at the sides by 34 mm and by 51
mm in the middle of the door. This en
-
ables the doors to be opened and shut
without being obstructed.
When installed next to a wall c a dis-
tance of approx. 36 mm is needed on
the hinge side between the wall and the
appliance, so that the doors and the
handles have sufficient space for open-
ing.
When securing to adjoining furniture
d or if a spacer is fitted between the
appliance and the wall, please note the
following:
^
Ensure that the doors have sufficient
space for opening fully after the ap
-
pliance has been secured.
^
Do not drill within the area marked
with criss cross pattern as this
would damage insulated parts of the
appliance.
^
To secure the appliance to adjoining
kitchen furniture use self-tapping
screws. The depth of the screw must
not exceed 10 mm. See small illustra
-
tion.
Building in the appliance
40

Related product manuals