EasyManua.ls Logo

Miele T 490 - Page 30

Miele T 490
36 pages
Print Icon
To Next Page IconTo Next Page
To Next Page IconTo Next Page
To Previous Page IconTo Previous Page
To Previous Page IconTo Previous Page
Loading...
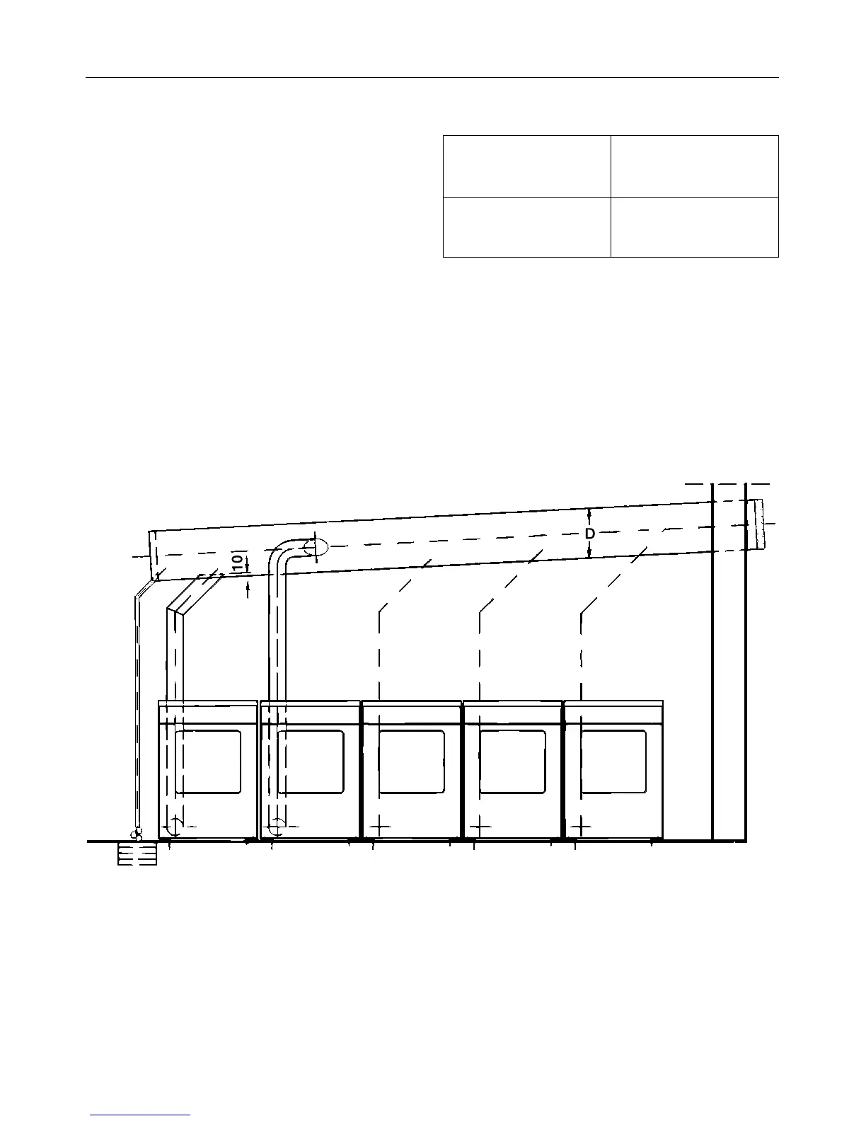
Installing several machines:
We recommend that when several ma-
chines are being installed each ma-
chine should be fitted with a non-return
flap (available from a good builders’
merchant). This will prevent odours
being transferred and the build up of
condensation in the machines which
are not in use.
For installation where up to 5 machines
are connected to a shared system the
pipe diameter (D) must be increased.
The factor to increase by is given in
Table III.
Table III
Number of
machines
Duct diameter
increase factor from
Table II
2
3
4-5
1.00
1.25
1.50
Installation - venting
30

Related product manuals