EasyManua.ls Logo

Mitsubishi Electric MXZ-2A30VA - E2 - Page 70

Mitsubishi Electric MXZ-2A30VA - E2
192 pages
Print Icon
To Next Page IconTo Next Page
To Next Page IconTo Next Page
To Previous Page IconTo Previous Page
To Previous Page IconTo Previous Page
Loading...
70
100
500
350350
100
500
100
100
350
200
500
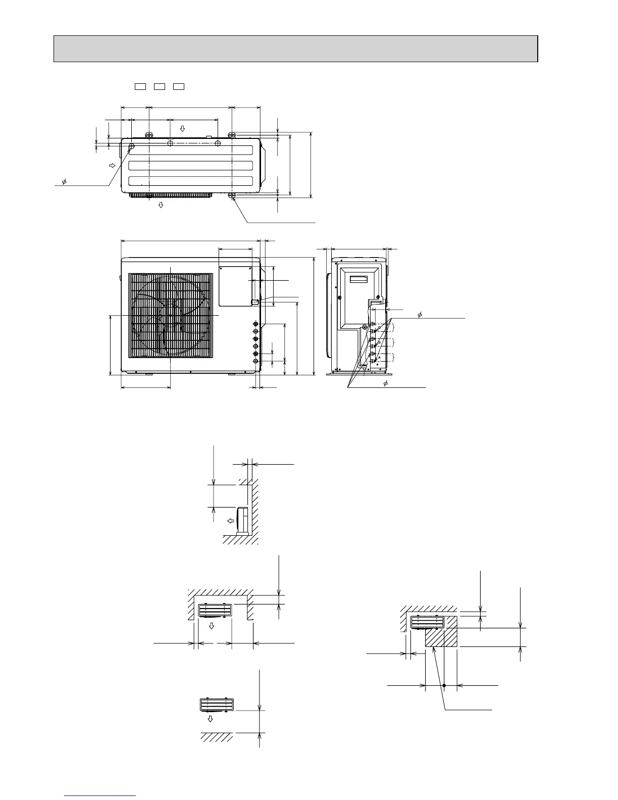
Service space
More than
More than
More than
More than
More than
More than
More than
More than
More than
More than
More than
1.Installation space
Note : Leave front and both sides
clearance fully.
Note : Leave front and overhead
clearance fully.
Note : Leave rear, overhead and
both sides clearance fully.
2.Service space
(Bolt Pitch)
4-10 x 21 Oval hole
(Base bolt M10)
Air in
Air in
Air out
3- 33 Drain hole
31.3
13.3 20.3
171500169
63.2
360.6
16.8
288233.1
17.717.7
396
30 330
66.3
840
30
710
299
360
240
200
Indoor and outdoor
connect wiring
39 x 27 hole
27.1
23.1
45
225
84
440
Gas pipe 9.52(flared)3/8
Liquid pipe 6.35(flared)1/4
C unit connection
B unit connection
A unit connection
13
Unit: mm
MXZ-3A54VA -
E5
,
E6
,
E7