EasyManua.ls Logo

Mitsubishi Electric MXZ-4A71VA - E2 - Page 72

Mitsubishi Electric MXZ-4A71VA - E2
192 pages
Print Icon
To Next Page IconTo Next Page
To Next Page IconTo Next Page
To Previous Page IconTo Previous Page
To Previous Page IconTo Previous Page
Loading...
72
MXZ-4A71VA -
E5
,
E6
,
E7
100
500
350350
100
500
100
100
350
200
500
Service space
More than
More than
More than
More than
More than
More than
More than
More than
More than
More than
More than
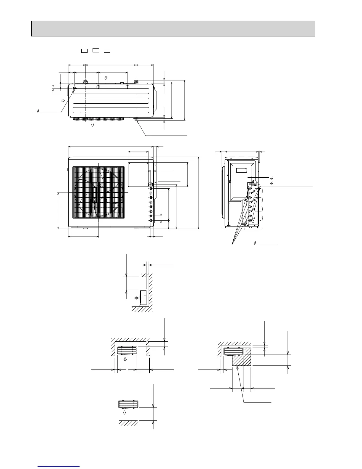
1.Installation space
Note : Leave front and both sides
clearance fully.
Note : Leave front and overhead
clearance fully.
Note : Leave rear, overhead and
both sides clearance fully.
2.Service space
Air in
Air in
Air out
(Base bolt M10)
4-10 x 21 Oval hole
3- 33 Drain hole
(Bolt Pitch)
171500
360.6
20.313.3
16.8
31.3
63.2 288233.1
169
396
17.7
17.7
9.52(flared)3/8(B,C,D unit)
Liquid pipe 6.35(flared)1/4
330 1330
66.3
Indoor and outdoor
connect wiring
39 x 27 hole
27.1
23.1
440
45
31584
299
360
710
840 30
200
240
D unit connection
C unit connection
B unit connection
A unit connection
12.7(flared)1/2(A unit)
Gas pipe
Unit: mm