EasyManua.ls Logo

Mitsubishi Electric MXZ-4A80VA - E2 - 9 REFRIGERANT SYSTEM DIAGRAM

Mitsubishi Electric MXZ-4A80VA - E2
192 pages
Print Icon
To Next Page IconTo Next Page
To Next Page IconTo Next Page
To Previous Page IconTo Previous Page
To Previous Page IconTo Previous Page
Loading...
87
a
b
Outdoor
unit
Indoor
units
10m
10m
10m
Refrigerant piping length (one way, 2 unit total)
Outdoor unit
precharged
(g)
20m
0
1,150
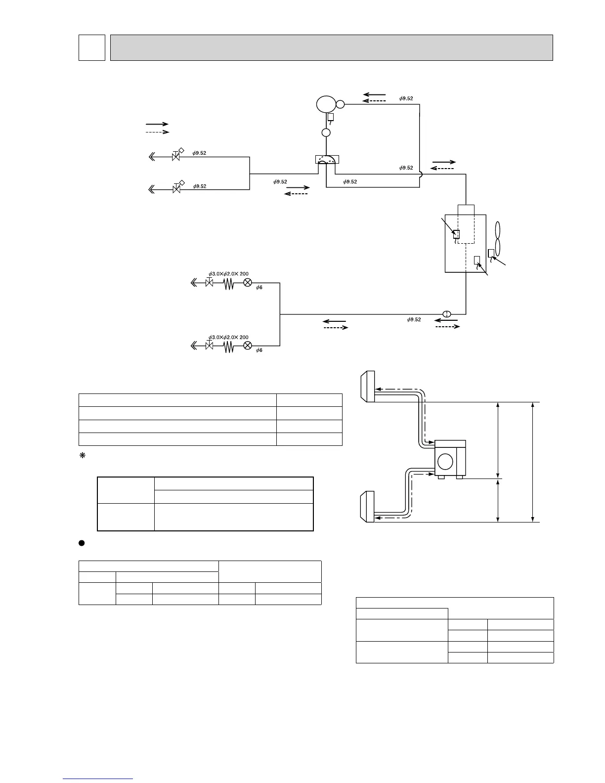
REFRIGERANT SYSTEM DIAGRAM
9
Stop valve
(with strainer #100)
LEV A
LEV B
Compressor
Defrost
thermistor
RT61
Muffler
4-way valve
Indoor unit
B
Indoor unit
A
Indoor unit
A
Indoor unit
B
Capillary tube
Capillary tube
Strainer
#100
Stop valve
(with strainer #100)
R.V. coil
OFF
ON
Refrigerant flow in cooling
Refrigerant flow in heating
Ambient
temperature
thermistor
RT65
Outdoor heat
exchanger
temperature
thermistor
RT68
FAN-OUT
HEX-OUT
Discharge
temperature
thermistor RT62
Stop valve
(with service port)
Stop valve
(with service port)
Refrigerant pipe diameter is different according to indoor unit to be connected. When using extension pipes, refer to the
tables below.
UNIT: mm (inch)
Piping length each indoor unit (a, b) 15m
Total piping length (a+b) 20m
Bending point for each unit 15
Total bending point 20
It does not matter which unit is higher.
ADDITIONAL REFRIGERANT CHARGE
UNIT: mm
MXZ-2A30VA
MAX REFRIGERANT PIPING LENGTH
Indoor unit
Extension pipe diameter
class Pipe diameter
22/25
Liquid 6.35(1/4) Liquid 6.35(1/4)
Gas 9.52(3/8) Gas 9.52(3/8)
Outdoor unit union diameter
For
Indoor unit A
Liquid 6.35(1/4)
Gas 9.52(3/8)
Indoor unit B
Liquid 6.35(1/4)
Gas 9.52(3/8)