EasyManua.ls Logo

Mitsubishi SRK05CR-S

Mitsubishi SRK05CR-S
118 pages
To Next Page IconTo Next Page
To Next Page IconTo Next Page
To Previous Page IconTo Previous Page
To Previous Page IconTo Previous Page
Loading...
-
27
-
'15 • SRK-T-171
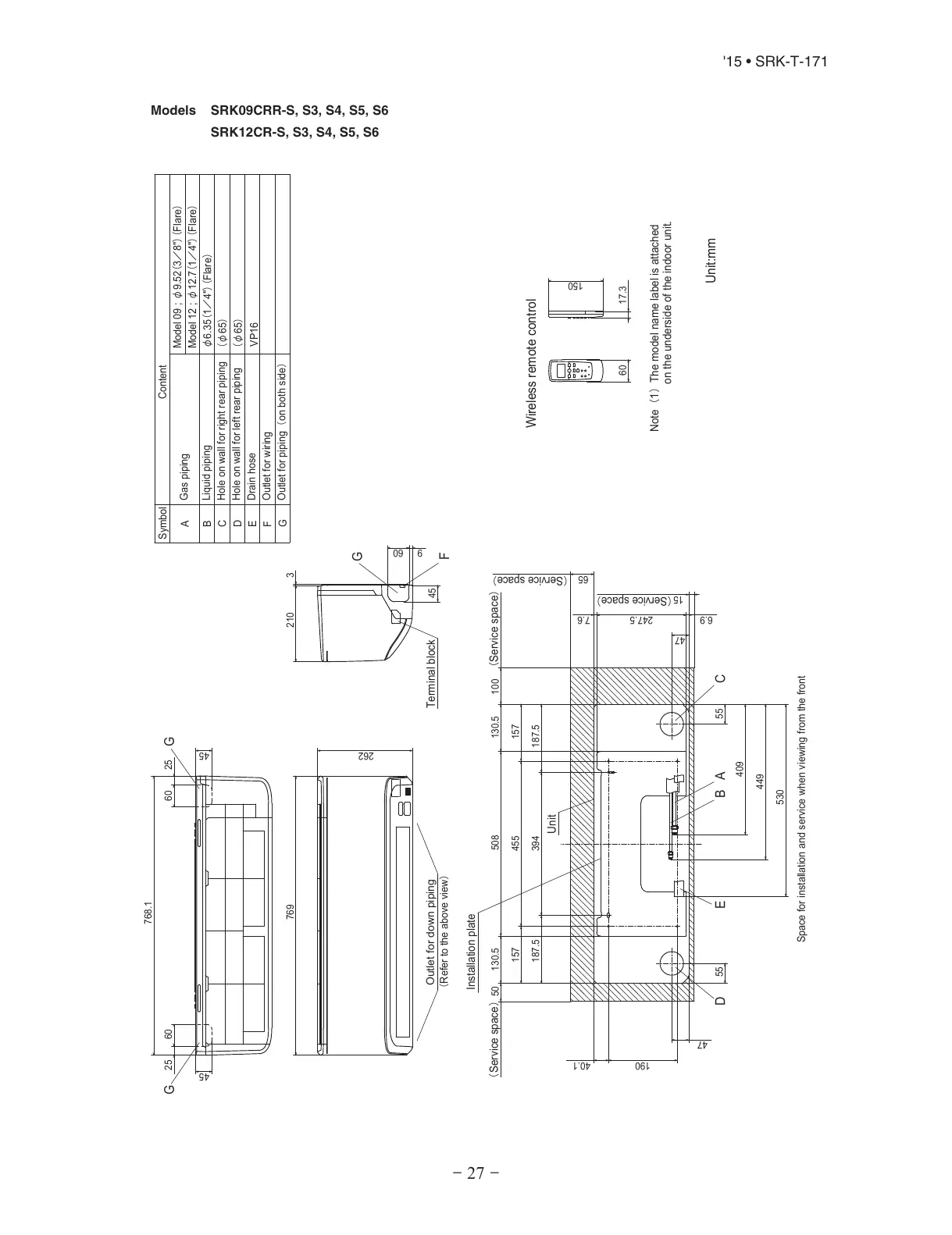
G
Terminal block
F
GG
Unit:mm
Wireless remote control
Outlet for down piping
Refer to the above view
Space for installation and service when viewing from the front
D E C
Hole on wall for right rear piping
Hole on wall for left rear piping
Gas piping
Outlet for wiring
Drain hose
Liquid piping
F
E
C
D
B
Symbol
A
65)
VP16
φ6.35(14")(Flare)
Content
65)
Outlet for pipingon both side
G
Model 09 ; φ9.52(38")(Flare)
Model 12 ; φ12.7(14")(Flare)
AB
Note1The model name label is attached
    on the underside of the indoor unit.
60
150
17.3
190 40.1
47
130.5 508 130.5
157 455 157
187.5 394 187.5
47
7.6247.56.9
Service space
65
Service space
15
50
Service space
100
Service space
55
409
449
530
55
Installation plate
Unit
6025 60 25
768.1
45
45
769
262
45
609
210 3
Models SRK09CRR-S, S3, S4, S5, S6
SRK12CR-S, S3, S4, S5, S6
All manuals and user guides at all-guides.com

Related product manuals