EasyManua.ls Logo

Mitsubishi SRK13CES - Piping System

Mitsubishi SRK13CES
260 pages
Print Icon
To Next Page IconTo Next Page
To Next Page IconTo Next Page
To Previous Page IconTo Previous Page
To Previous Page IconTo Previous Page
Loading...
-
64
-
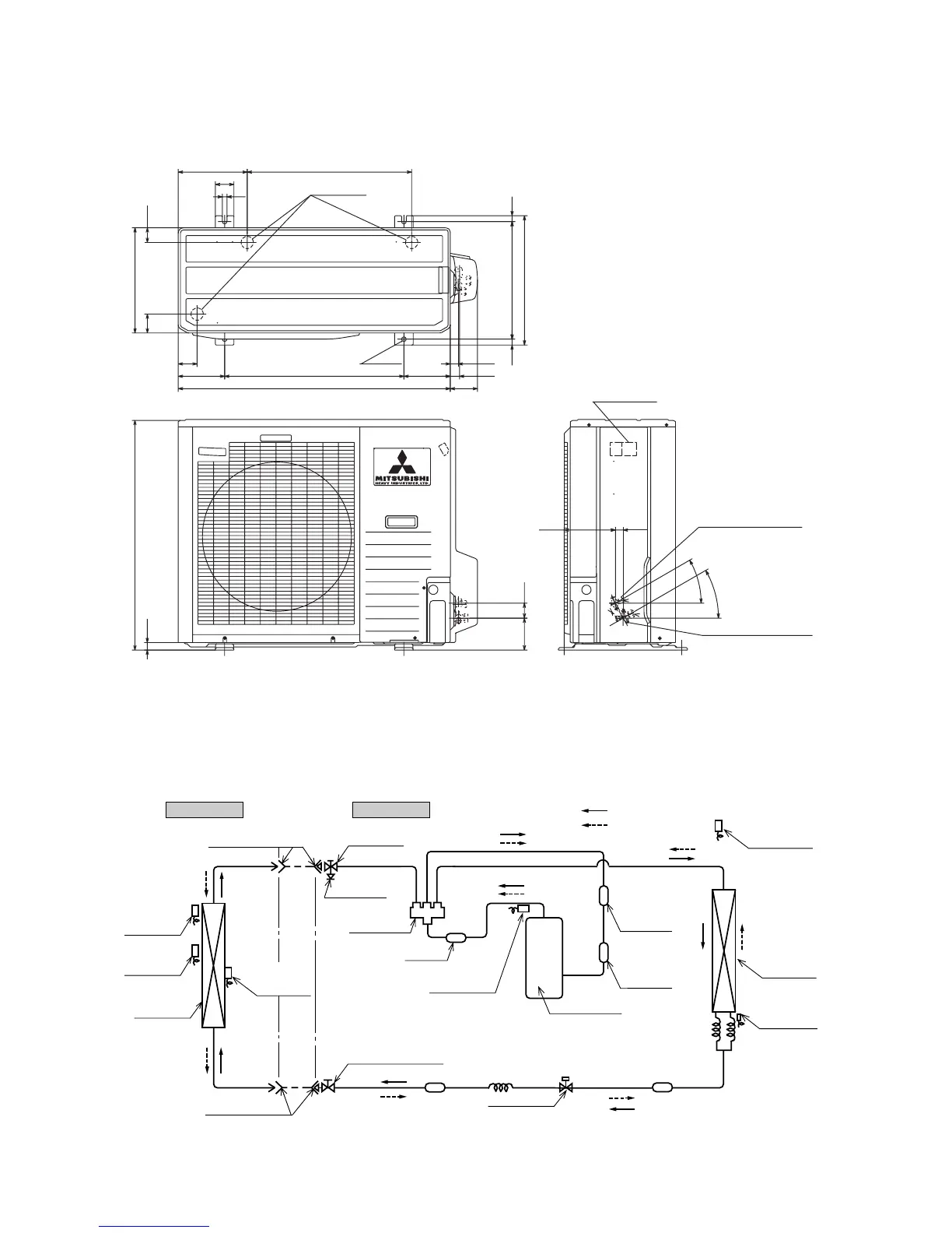
(b) Outdoor unit
Model SRC22ZEV-S
(4) Piping system
Model SRK22ZEV-S
Unit: mm
Terminal block
Service valve (Gas)
Flare fitting ø15.88 (5/8")
Service valve (Liquid)
Flare fitting ø6.35 (1/4")
25.1
165.5
3
0°
30°
48.5103.3
750
24.1
Drain holes
2-ø15
25.8
29.8
87.9
880
150
580150
61
532
223
60
15
340
61 47.5
19 380 19
418
Outdoor unitIndoor unit
Heat
exchanger
Room temp.
sensor
Humidity
sensor
Heat
exchanger
Flare connecting
Heat
exchanger
sensor
Piping
(Liquid)
ø6.35
Piping
(Gas)
ø15.88
Check joint
4 way valve
Service valve (Liquid)
Flare connecting
Discharge pipe
temp. sensor
Cooling cycle
Heating cycle
Outdoor air
temp. sensor
Heat exchanger
sensor
Compressor
uffler
M
Capillary tube
Strainer Strainer
accumulator
Accumulator
Sub
Service valve
(Gas)
Electronic
expansion valve

Table of Contents

Related product manuals