EasyManua.ls Logo

Mitsubishi SRK501HENF-L - Exterior dimensions

Mitsubishi SRK501HENF-L
68 pages
Print Icon
To Next Page IconTo Next Page
To Next Page IconTo Next Page
To Previous Page IconTo Previous Page
To Previous Page IconTo Previous Page
Loading...
1-25
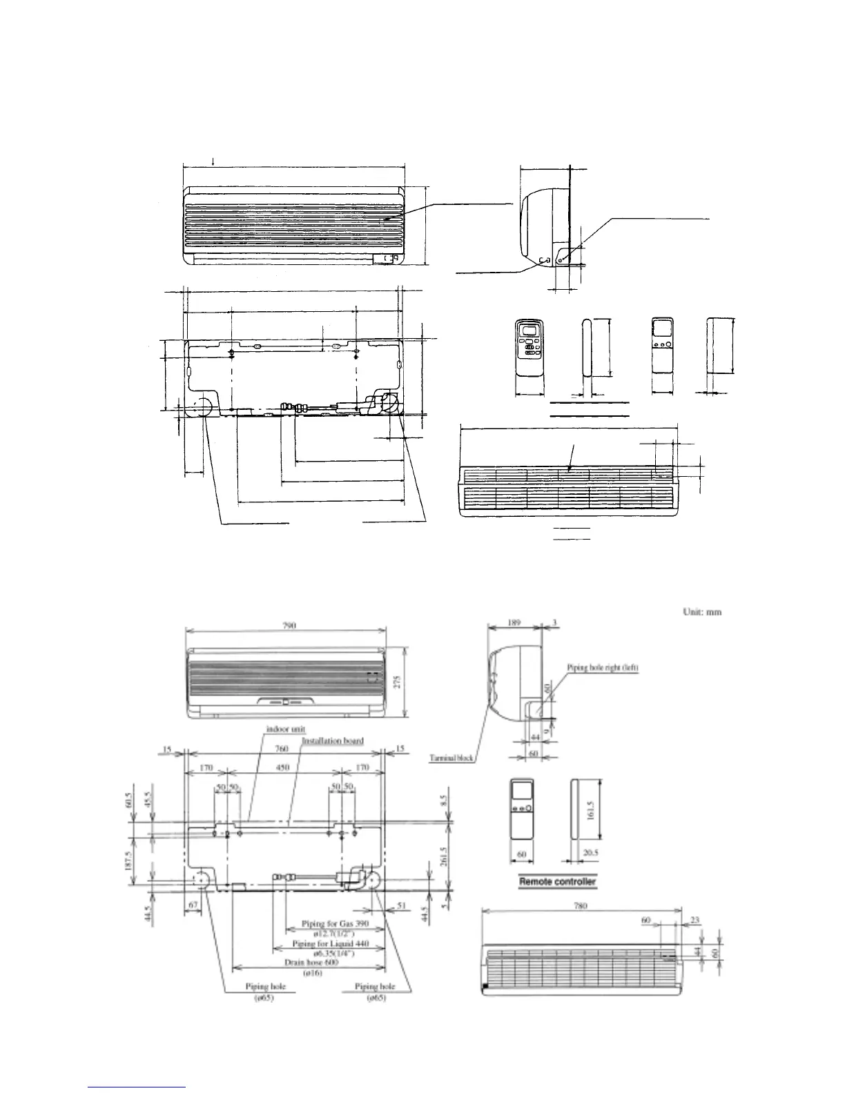
1.2.3 Exterior dimensions
(1) Indoor unit
Models SRK 208, 288, 328, 408 -HENF, -CENF, 258CENF
A
790
15
67
51
390
60
62 18
16
780
*
VIEW A
Remote controller
15 760
170
450 170
Room temp. sensor
Terminal block
20, 28, 32, 40 models 41 models
Piping for Liquid (
Ø
6.35) 440
NOTE(1) Models 20 and 28 have no inlet opening indicated by * mark.
Drain hose 600 (
Ø
16)
Piping hole
(
Ø
65)
Piping hole
(
Ø
65)
Piping hole right (left)
Unit: mm
174 3
275
187.5 61
46
9260
117
60
20.5
161.5
37
6
36
569
49
Piping for Gas
20, 28:
Ø
9.52
32, 40, 41,
Ø
12.7
( )
Models SRK501H(C)ENF-L, 561H(C)ENF-L

Related product manuals