EasyManua.ls Logo

Monessen Hearth BUF32A - Good Faith Wall Surface;Tv Guidelines

Monessen Hearth BUF32A
16 pages
Print Icon
To Next Page IconTo Next Page
To Next Page IconTo Next Page
To Previous Page IconTo Previous Page
To Previous Page IconTo Previous Page
Loading...
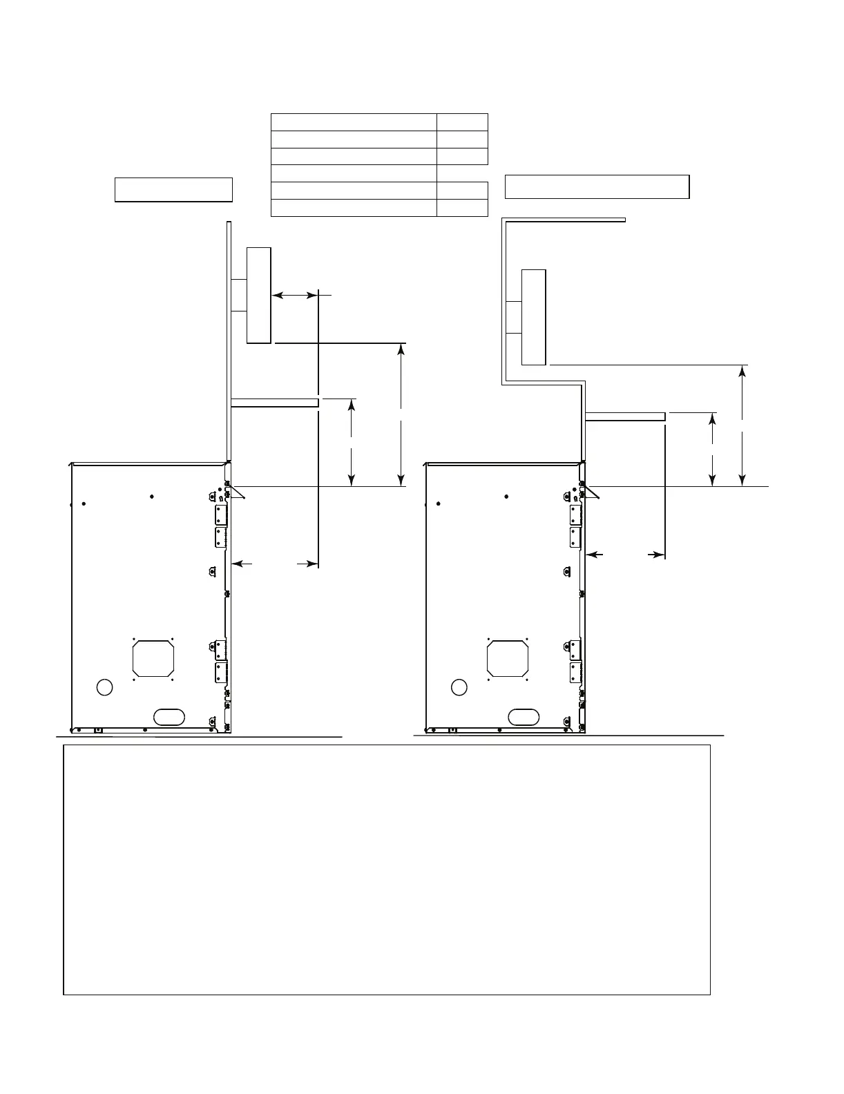
E. Good Faith Wall Surface/TV Guidelines
Figure 3.4 Good Faith Guidelines
Combusble Mantel
A
inch
17.00
mm
432
Non-Combusble Mantel
inch
12.00
mm
305
Good Faith Guidelines for TV Installa�on’s above a Typical Gas Fireplace
TV on the wall
TV recessed into the wall
Notes:
1. These are good faith recommended clearances only and not a guarantee of compliance with all TV
manufacturers’ maximum allowable operating temperatures.
2. Since every home has unique air ow characteristics and maximum allowable operating temperatures
can vary from manufacturer to manufacturer and from model to model, actual TV temperatures should be
validated at the time of each installation. TVs should not be used in situations where the actual TV
temperature exceeds the manufacturers maximum allowable operating temperatures identied in the
TVs technical specications. Contact the TVs manufacturer directly if you cannot locate this information
or have questions regarding the information.
3. Mantel height and depth must conform to mantel requirements specied in the replace installation
manual.
4. A dimension taken from the top of the rebox opening.
5. Suggestions on how to further reduce TV temperatures:
-Increase A and/or 24” minimum TV height dimensions.
6" Min.
A Min.
24" Min.
12" Min.
TV
24" Min.
A Min.
12" Min.
TV
9
Monessen • BUF32/36/42 Owner's Manual • 4139-900 • Rev A • 01/21

Other manuals for Monessen Hearth BUF32A

Related product manuals