EasyManua.ls Logo

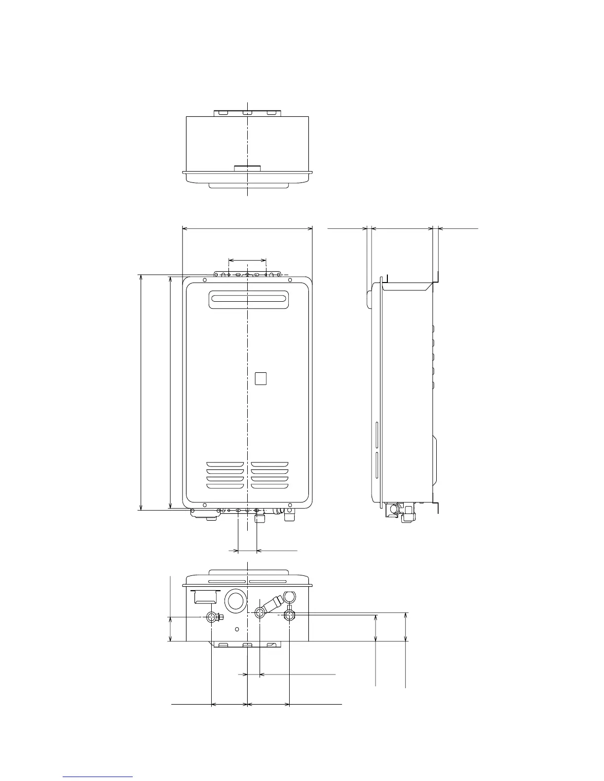
Monitor MWH180EX - Dimensions

Monitor MWH180EX
33 pages
Print Icon
To Next Page IconTo Next Page
To Next Page IconTo Next Page
To Previous Page IconTo Previous Page
To Previous Page IconTo Previous Page
Loading...
- 16 -
23 1/32"
(585mm)
22 5/8"
(575mm)
13 25/32"
(350mm)
3 15/16"
(100mm)
2 3/8"
(60mm)
1 5/16"
(33.5mm)
4 15/32"
(113.5mm)
3 13/16"
(97mm)
2 25/32"
(71mm)
3 9/16"
(97mm)
1 31/32"
(50mm)
6 1/2"
(165mm)
19/32"
(15mm)
15/32"
(12mm)
2-2 DIMENSIONS