EasyManua.ls Logo

Monitor TrueCap MK-2 - Mechanical Installation Procedures; Standard, Stub, Cable Extension, and Remote Probe Mounting; Lagged Housing Version Mounting

Monitor TrueCap MK-2
10 pages
Print Icon
To Next Page IconTo Next Page
To Next Page IconTo Next Page
To Previous Page IconTo Previous Page
To Previous Page IconTo Previous Page
Loading...
Lagged Housing Version Mounting: (See Figure 6)
1) Select a mounting location in accordance with the Pre-
Installation Recommendations.
2) Cut a hole into the side/top of the vessel corresponding to
the coupling used.
3) Weld coupling to the vessel wall.
4) Insert probe through coupling and thread unit tightly into
place by gripping and rotating the 15/16 inch (24 mm)
wrench flats provided on fitting closest to mounting point.
Do not use sealant tapes (e.g. Teflon tape) or putties. If flats
are inaccessible due to tank insulation, thread unit into place
by gripping and rotating lagging pipe with a strap/pipe
wrench. Continuity between sensor mounting point and vessel
wall must be maintained to assure proper probe operation.
3
ME CHA N IC AL I NS TA LL AT I ON
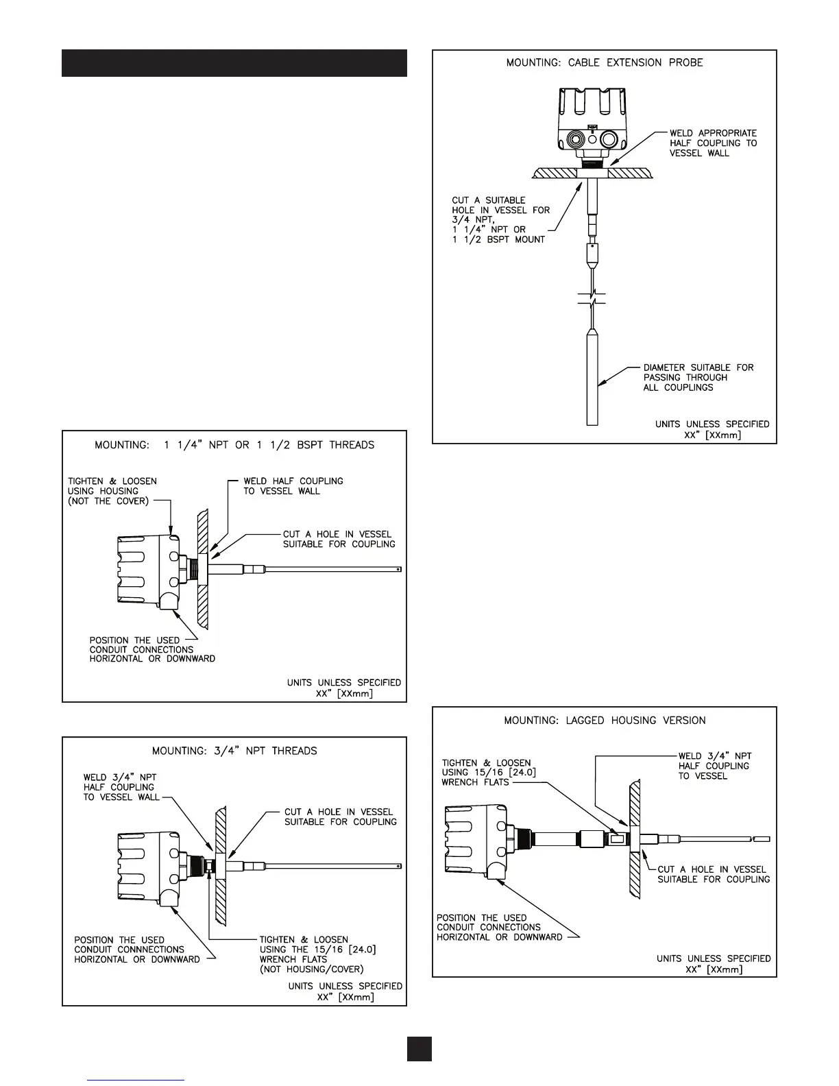
Standard, Food Grade, Stub, Cable Extension and Remote
P
robe Mounting: (See Figures 3, 4 & 5)
1) Select a mounting location in accordance with the Pre-
Installation Recommendations.
2) If using a welded coupling, cut a hole into the side/top of the
vessel corresponding to the mounting connection (i.e. 1-1/2”
BSPT, 1-1/4” NPT or 3/4” NPT). If using a Monitor mount-
ing plate, cut a 2-1/2 inch (64 mm) center hole and six 11/32
inch (9 mm) mounting holes (for 5/16” bolts) on a 7 inch (178
mm) bolt circle. Use mounting plate gasket as a template.
3) Weld coupling or attach mounting plate to vessel wall.
4) Insert probe through coupling. Do not use sealant tapes (e.g.
Teflon tape) or putties. When using the 1-1/2” BSPT or
1-1/4” NPT connection, grease threads with anti-seize then
thread unit tightly into place by gripping and rotating hous-
ing. When using the 3/4” NPT connection, thread unit tight-
ly into place by gripping and rotating 15/16 inch (24 mm)
wrench flats provided on fitting. Continuity between sensor
mounting point and vessel wall must be maintained to
assure proper probe operation.
Figure 4
Figure 3
Figure 5
Figure 6
D
IMENSIONS ARE SHOWN IN INCHES WITH MILLIMETER EQUIVALENT IN BRACKETS