EasyManua.ls Logo

Monogram 30? - Care and Cleaning; Oven Light Replacement

Monogram 30?
80 pages
Print Icon
To Next Page IconTo Next Page
To Next Page IconTo Next Page
To Previous Page IconTo Previous Page
To Previous Page IconTo Previous Page
Loading...
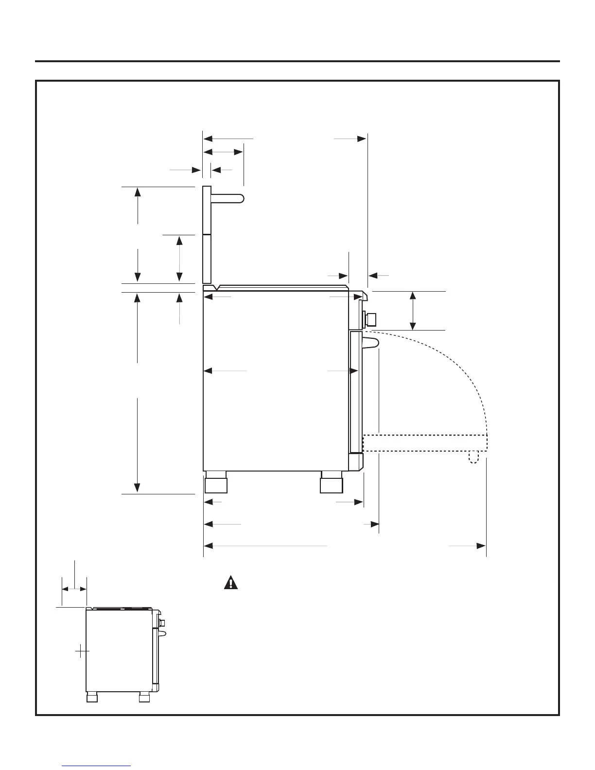
DIMENSIONS DE L’APPAREIL ET ESPACES
Caractéristiques
Modèles de cuisinière 76 cm (30”), 91 cm (36”) et 121 cm (48”)
32
30,5 cm (12”) min par rapport
aux matériaux inflammables ou 0
par rapport aux matériaux
ignifuges au-dessus de la surface
de cuisson
48-1/4” (121,28 cm)
avec la porte du four ouverte
31-1/16” (78,58 cm)
jusqu’à l’avant de la poignée
35-1/4” (88,26 cm)
à
36-3/4” (89,53 cm)
30–36”
(76 –91 cm)
12”
(30 cm)
13/16” (2 cm)
10-1/2” (24,13 cm)
28-7/8” (68,89 cm)
jusqu’au bord
avant
27-1/2” (67,31 cm)
par rapport au
bord en biseau –
Profondeur
maximum
du placard
adjacent pour
un encastrement
parfait
28-1/4” (70,96 cm) jusqu’à
l’avant de la porte
Dosseret
en option
Espace
par rapport
à un mur
arrière ou
latéral sous la
surface
de cuisson
AVERTISSEMENT :
Le un dosseret de 12” (30 cm) en acier
inoxydable doit être installé avec un
dosseret ignifuge personnalisé.
Le dosseret fini doit recouvrir la totalité
du mur arrière jusqu’au bas de la hotte,
ou en l’absence de hotte, 48” (121 cm)
aux matériaux inflammables.
3-3/16” Profondeur
du panneau de
commande (7,14 cm)
7” Hauteur du panneau
de commande (17,78 cm)
28-1/4” (70,48 cm)
jusqu’au bord
en biseau du chanfrein
arrondi du panneau
de commande
1-1/2”
(3,8 cm)

Table of Contents

Other manuals for Monogram 30?

Related product manuals