EasyManua.ls Logo

Monogram 30? - Page 57

Monogram 30?
80 pages
Print Icon
To Next Page IconTo Next Page
To Next Page IconTo Next Page
To Previous Page IconTo Previous Page
To Previous Page IconTo Previous Page
Loading...
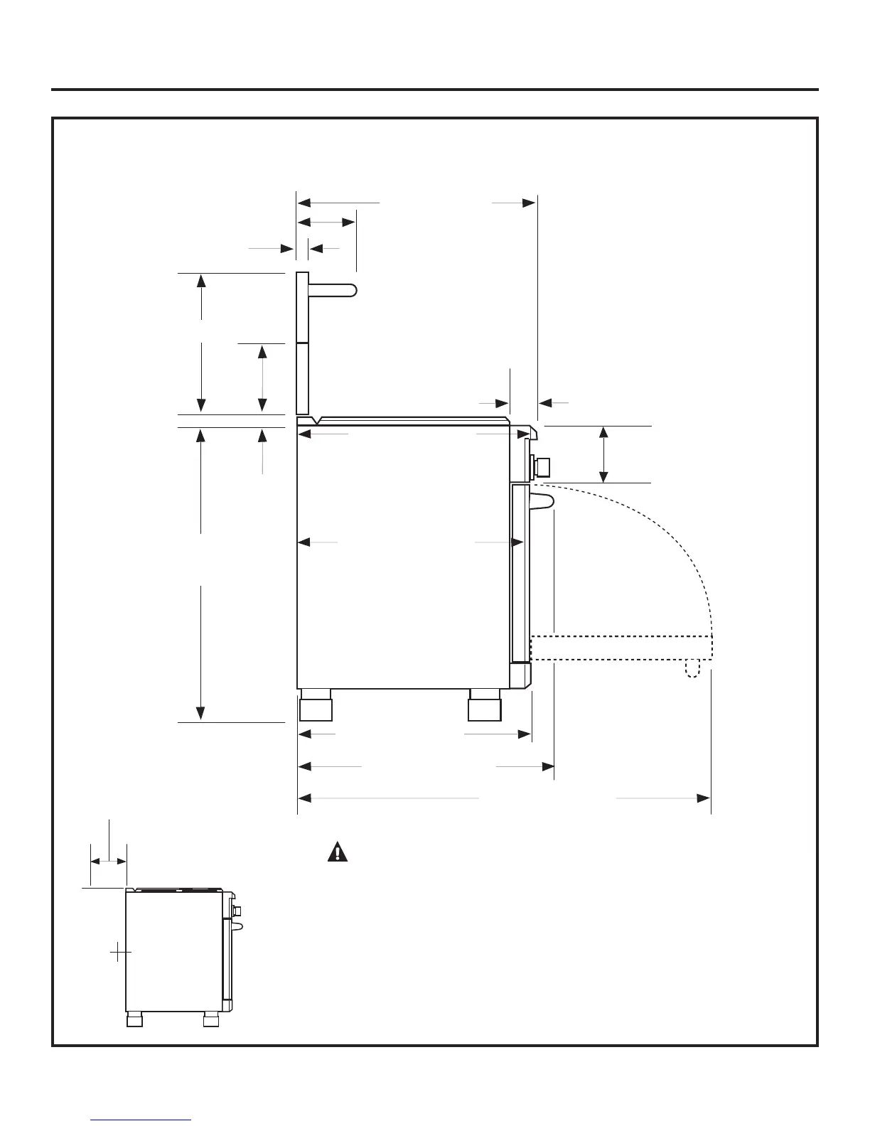
DIMENSIONES Y ESPACIOS DEL PRODUCTO
Información de diseño
Modelos de cocinas de 48”, 36” y 30”
57
12” mín. respecto de materiales
combustibles o 0” respecto de
materiales no combustibles sobre
la superficie de cocción
48-1/4” con la puerta
del horno abierta
31-1/16” Hasta
el frente de la manija
35-1/4”
a
36-3/4”
30-36”
12”
13/16”
10-1/2”
28-7/8”
hasta el lado
frontal
27-1/2” hasta
el lado biselado
– Profundidad
máxima de gabinete
adyacente para
instalaciones a nivel
28-1/4” Hasta
el frentede la puerta
Accesorios
opcionales
para
salpicadero
Espacio de
0” respecto
de una pared
trasera
o lateral debajo
de la superficie
de cocción
ADVERTENCIA:
El accesorio para salpicadero de
acero inoxidable de 12” de altura
debe instalarse en combinación
con un salpicadero no combustible
a medida.
El salpicadero terminado debe cubrir
toda la pared trasera hasta la parte
inferior de una capucha, o cuando
no haya una capucha, 48” respecto
de elementos combustibles.
3-3/16”
Profundidad del
panel de control
7” altura
del panel de control
28-1/4” hasta
el borde biselado
del lado redondeado
del panel de control
1-1/2”

Table of Contents

Other manuals for Monogram 30?

Related product manuals