EasyManua.ls Logo

MSI B360M PRO-VD - Tableau Explicatif de L État de la LED du Port LAN; Vue D Ensemble des Composants

MSI B360M PRO-VD
150 pages
Print Icon
To Next Page IconTo Next Page
To Next Page IconTo Next Page
To Previous Page IconTo Previous Page
To Previous Page IconTo Previous Page
Loading...
7
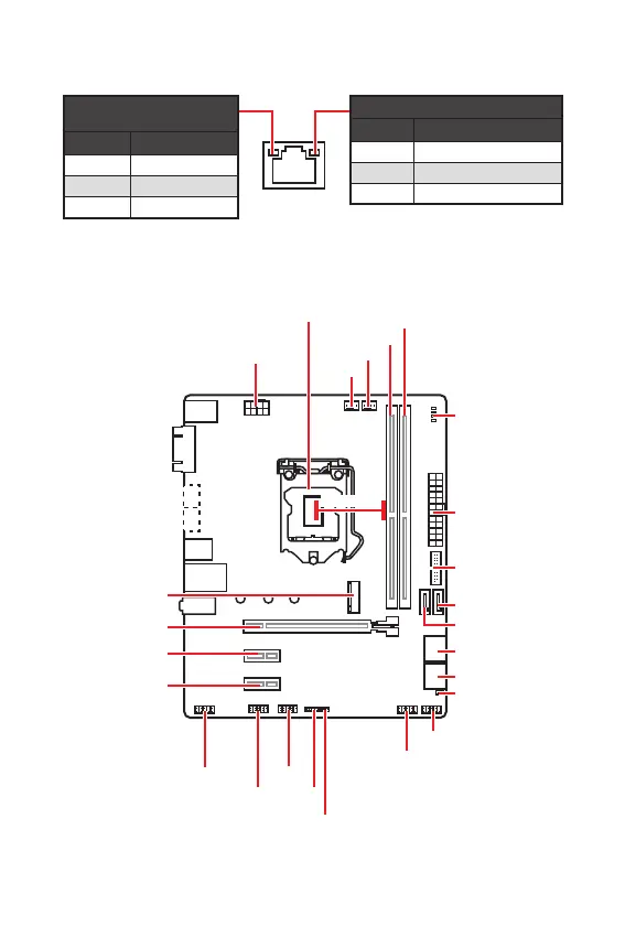
Panneau arrière Entrée/ Sortie Vue d󾙓ensemble des composants
LED indiquant la
connexion et l󾙓activité
Etat Description
Eteint Pas de connexion
Jaune Connexion correcte
Clignote Activité en cours
LED indiquant la vitesse
Etat Description
Eteint Débit de 10 Mbps
Vert Débit de 100 Mbps
Orange Débit de 1 Gbps
Tableau explicatif de l󾙓état de la LED du port LAN
Vue d󾙓ensemble des composants
CPU_FAN1
ATX_PWR1
EZ Debug LED
Socket
processeur
PCI_E1
SYS_FAN1
PCI_E2
PCI_E3
M2_1
JCI1
DIMMA1
DIMMB1
SATA1
SATA2
JBAT1
JFP1
JFP2
CPU_PWR1
JUSB2
JUSB1
JUSB3
JCOM1
JAUD1
SATA34
SATA56
* Distance entre le centre du CPU et le slot DIMM le plus proche.
50.83mm*

Table of Contents

Related product manuals