EasyManua.ls Logo

MSI H310M PRO-D

MSI H310M PRO-D
165 pages
To Next Page IconTo Next Page
To Next Page IconTo Next Page
To Previous Page IconTo Previous Page
To Previous Page IconTo Previous Page
Loading...
8
󶳧󱝾󴘭󸵅
󶳧󱝾󴘭󸵅
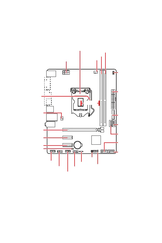
BAT1
CPU_FAN1
ATX_PWR1
󶘮󴁳󱢉󹜂 LED 󵉉
CPU 󳍢󳎁
PCI_E2
PCI_E1
SYS_FAN1
PCI_E3
JBAT1
JCI1
JTPM1
DIMMA1
DIMMB1
JUSB2
JFP2
JFP1
CPU_PWR1
JUSB1
JCOM1
JAUD1
SATA1
SATA4
SATA2
SATA3
50.83 󴪸󶠽
󱝃 CPU 󱙆󳖒󱳭
󴇴󸳽󵵙 DIMM
󳱥󴜖󵵙󸦦󶊮

Table of Contents

Related product manuals