EasyManua.ls Logo

MSI MS-7602 - Page 18

MSI MS-7602
92 pages
Print Icon
To Next Page IconTo Next Page
To Next Page IconTo Next Page
To Previous Page IconTo Previous Page
To Previous Page IconTo Previous Page
Loading...
2-2
Hardware Setup
MS-7602
Hardware Setup
MS-7602
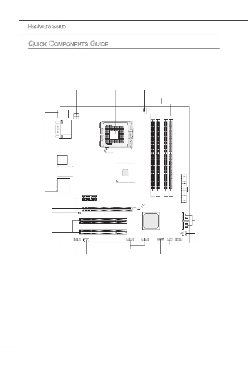
Quick coMponentS guide
CPU, p.2-3
DDR2, p.2-7
JPWR1, p.2-9
CPUFAN1, p.2-13
JPWR2, p.2-9
SATA1~4, p.2-13
JBAT1, p.2-16
SYSFAN1, p.2-13
JFP1, JFP2, p.2-12
JTPM1, p.2-15
JUSB1 ~2 , p.2-14
JSP1, p.2-15
JAUD1, p.2-14
PCI, p.2-17
PCIE, p.2-17
JCI1, p.2-13
Back Panel,
p.2-10

Related product manuals