EasyManua.ls Logo

MSI PRO B660M-E - 專屬特色

MSI PRO B660M-E
202 pages
Print Icon
To Next Page IconTo Next Page
To Next Page IconTo Next Page
To Previous Page IconTo Previous Page
To Previous Page IconTo Previous Page
Loading...
8
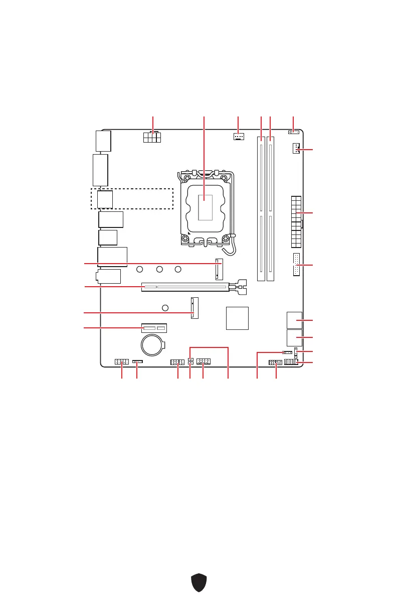
BAT1
JUSB2
ATX_PWR1
SYS_FAN1
CPU_FAN1


󷴺󵤾󲑠󷉥󳐄
CPU_PWR1
JFP2
JTPM1
JCOM1
JRAINBOW2**
JBAT1
JUSB1
JRGB1**
JAUD1
PCI_E2
M2_WIFI1
PCI_E1
JCI1
M2_1
JFP1
DIMMB1
JRAINBOW1**
DIMMA1
󱯯󱠁󶱳󸌶
󸼄󵭡󴁘
󾖛󲅈󸼄󵭡󴁘
󱬊
󹂦󶹌

Table of Contents

Related product manuals