EasyManua.ls Logo

MSI PRO B660M-E - 特殊功能

MSI PRO B660M-E
202 pages
Print Icon
To Next Page IconTo Next Page
To Next Page IconTo Next Page
To Previous Page IconTo Previous Page
To Previous Page IconTo Previous Page
Loading...
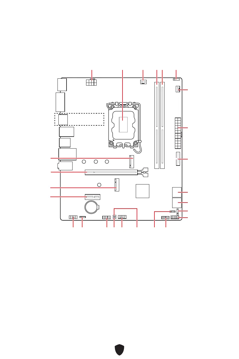
8
BAT1
JUSB2
ATX_PWR1
SYS_FAN1
CPU_FAN1


󲢩󵤾󲑠󳏤󳐄
CPU_PWR1
JFP2
JTPM1
JCOM1
JRAINBOW2**
JBAT1
JUSB1
JRGB1**
JAUD1
PCI_E2
*M2_WIFI1
PCI_E1
JCI1
M2_1
JFP1
DIMMB1
JRAINBOW1**
DIMMA1
󶵪󱠁󴚯󸷇
󸷷󵭡󱝙
󽚟󲅈󸷷󵭡󱝙
󱞵󸷷󵭡󱝙
H610M-G)

Table of Contents

Related product manuals