EasyManua.ls Logo

NARVI NM 450 - Page 45

NARVI NM 450
Print Icon
To Next Page IconTo Next Page
To Next Page IconTo Next Page
To Previous Page IconTo Previous Page
To Previous Page IconTo Previous Page
Loading...
RO
MANUAL DE INSTALARE ŞI UTILIZARE
NARVI NM 4,5kW 6kW 9kW
NARVI MINEX 2,3kW 3kW 3,6kW
Va rugam sa cititi cu atentie manualul inainte de instalare si utilizare,
iar apoi pastrati-l pentru referinte ulterioare. Produsele au fost
concepute doar pentru a  utilizate pentru a incalzi saunele.
1. ÎN SETUL FOCARULUI ELECTRIC INTRĂ:
1. Carcasa focarului.
2. Spaţiul pentru pietre cu panou de control.
3. Placa de susţinere cu şuruburi.
4. Ghid de montare şi întreţinere.
2. DE VERIFICAT PREVENTIV MONTĂRII
- Puterea focarului (kw) să corespundă volumului încăperii pentru
saună (m³).
- În tabelul 1 sunt indicate volumele încăperilor pentru diferite
tipuri de focare.
- Dacă în încăperea pentru saună sunt suprafeţe neizolate din
cărămidă, gresie sau sticlă, pentru ecare metru pătrat al unei
astfel de porţiuni de perete se adaugă 1,5 m³ la volumul saunei.
În dependenţă de aceasta, cu tabelul 1 se determină puerea
necesară a focarului.
Volumele saunei nu trebuie să e mai mici sau să le
depăşească pe cele prezentate în tabelul 1.
- Înălţimea minimală a saunei şi distanţa de siguranţă a focarului
electric sunt determinate în tabelul 1.
- Vercaţi ca suportul pentru şuruburile plăcii de susţinere să e
destul de dur. O singură placă subţire nu e sucientă pentru
aceasta. Drept garnitură de întărire poate servi un suport
suplimentar sub planşă sau scînduri pe planşă, întărite de
suportul de perete.
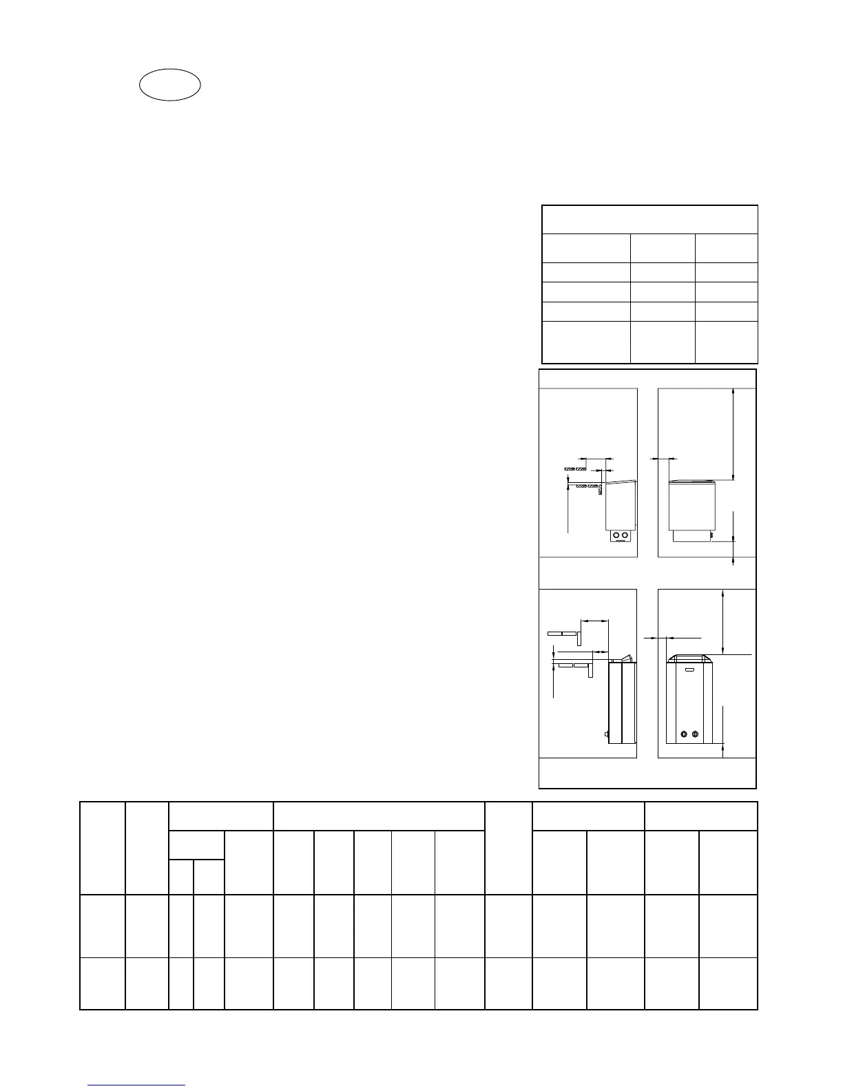
B
min. 20
min. 20
A
NM:
C
E
D
MINEX:
B
C
A
E D
Fig.
1
DATE TEHNICE
NM MINEX
- Latime 430 mm 330 mm
- Adancime 300 mm 200 mm
- Inaltime 580 mm 630 mm
- Greutate
(fara pietre)
10 kg 7 kg
Modelul
focarului
Puterea Încăperea pentru
saună
Distanţele minimale de siguranţă Cantit.
de pietre
Conectare*) Conectare*)
Volumul Înălţimea Lateral În faţă În faţă Pînă la
tavan
Pînă la
pardosea
5-10
cm
400 V 3N~ Siguranţele 230 V 1N~ Siguranţele
min max min A **) B **) C **) D **) E **)
kW m
3
m
3
mm mm mm mm mm mm kg mm
2
A mm
2
A
NM
4,5 3 6 1900 50 50 20 1150 120 30 5x1,5 3x10 - -
6 5 8 1900 50 80 20 1150 120 30 5x1,5 3x10 - -
9 8 14 1900 100 100 20 1150 120 30 5x2,5 3x16 - -
MINEX
2,3
1,5 2,5 1900 20 50 20 900 150 15 - - 3x1,5 1x10
3 2 3 1900 20 50 20 900 150 15 - - 3x2,5 1x16
3,6 2 4 1900 20 50 20 900 150 15 - - 3x2,5 1x16
Tabelul 1. Datele pentru montarea focarelor
**) vezi g. 1 *) Drept cablu de conexiune trebuie să se folosească cablu cu
izolare din cauciuc HO7RN-F sau cablu analogic.

Related product manuals