EasyManua.ls Logo

NARVI NM 600 - Page 9

Default Icon
Print Icon
To Next Page IconTo Next Page
To Next Page IconTo Next Page
To Previous Page IconTo Previous Page
To Previous Page IconTo Previous Page
Loading...
INSTALLATIONS- OCH BRUKSANVISNING
NARVI NM 4,5kW 6kW 9kW
NARVI MINEX 2,3kW 3kW 3,6kW
Aggregats-
modell
Effekt Basturum Minimisäkerhetsavstånd till aggregatet Sten-
mängd
Anslutning *)
Volym Höjd
sidorna
Fram-
för
Fram-
för
Till
taket
Till
golvet
5-10
cm
400 V
3N~
Säkringar 230 V
1N~
Säkringar 230 V
3~
Säkringar
min max min A **) B **) C **) D **) E **)
kW m
3
m
3
mm mm mm mm mm mm kg mm
2
A mm
2
A mm
2
A
NM
4,5 3 6 1900 50 50 20 1150 120 30 5x1,5 3x10 - - 4x2,5 3x16
6 5 8 1900 50 80 20 1150 120 30 5x1,5 3x10 - - 4x2,5 3x16
9 8 14 1900 100 100 20 1150 120 30 5x2,5 3x16 - - 4x6 3x25
MINEX
2,3
1,5 2,5 1900 20 50 20 900 150 15 - - 3x1,5 1x10
3 2 3 1900 20 50 20 900 150 15 - - 3x2,5 1x16
3,6 2 4 1900 20 50 20 900 150 15 - - 3x2,5 1x16
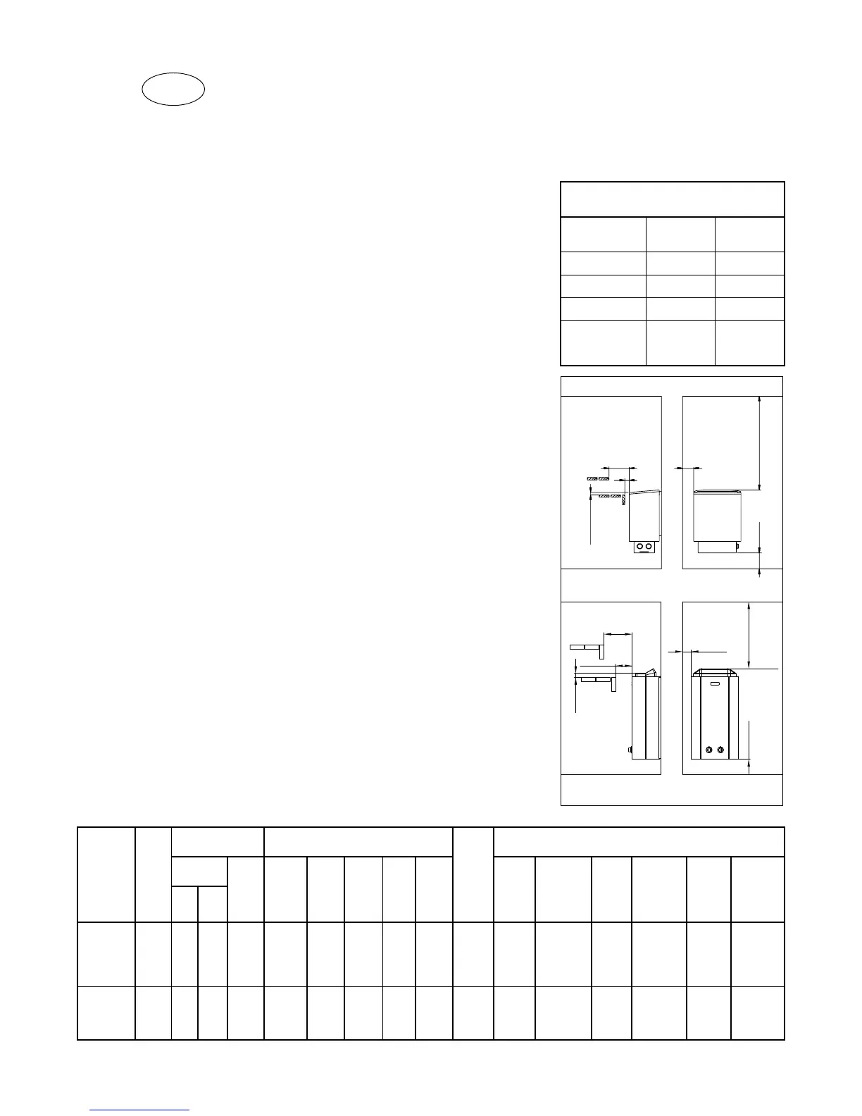
Tabell 1. Installationsdata för aggregat
**) Se gur 1 *) Som anslutningskabel används gummikabel av typ H07RN-F eller motsvarande kabel
TEKNISKA DATA
NM MINEX
- Bredd 430 mm 330 mm
- Djup 300 mm 200 mm
- Höjd 580 mm 630 mm
- Vikt
(utan stenar)
10 kg 7 kg
SE
Läs noggrant igenom dessa anvisningar innan du monterar och
använder bastuugnen för första gången och spara de för senare bruk.
Produkten är avsedd för användning endast som en bastuugn och för
uppvärmning av bastun.
1. PAKETET MED ELEKTRISKT
BASTUAGGREGAT INNEHÅLLER:
1. Bastuaggregat med styrenhet
2. Fästplattor + fästskruvar
3. Temperaturgivare
4. Styrenhet
5. Installations- och bruksanvisning för aggregatet
2. FÖRE INSTALLATIONEN:
Kontrollera följande saker:
Att aggregatet har rätt effekt (kW) i förhållande till bastuns volym (m
3
).
I tabell 1 anges bastuvolymerna för olika bastuaggregatsmodeller.
Om det nns icke-värmeisolerade ytor av exempelvis tegel,
kakel eller glas i bastun, ska man för varje sådan kvadrat-
meter väggyta lägga till 1,5 m
3
bastuvolym, på basen av
vilken man bestämmer den bastuaggregatseffekt som
behövs utgående från tabell 1.
De bastuvolymer som anges i tabell 1 får varken
överskridas eller underskridas.
Bastuns minimihöjd samt minimisäkerhetsavstånden anges i tabell 1.
Försäkra dig om att fästunderlaget för fästplattans skruvar är
tillräckligt stadigt. Enbart en tunn panel räcker inte. Som
förstärkning kan man ha en extra spikregel bakom panelen
eller förstärkningsbrädor som placeras ovanpå panelen och fästs i
spikregeln på väggen.
Bild 1. Skyddsavstånd till bastuaggregatet
B
min. 20
min. 20
A
NM:
C
E
D
MINEX:
B
C
A
E D

Related product manuals