EasyManua.ls Logo

NCE AR10 - Indicator LEDs and Connections; Understanding Indicator LEDs; AR10 Connections Overview; Switches on the AR10

NCE AR10
8 pages
Print Icon
To Next Page IconTo Next Page
To Next Page IconTo Next Page
To Previous Page IconTo Previous Page
To Previous Page IconTo Previous Page
Loading...
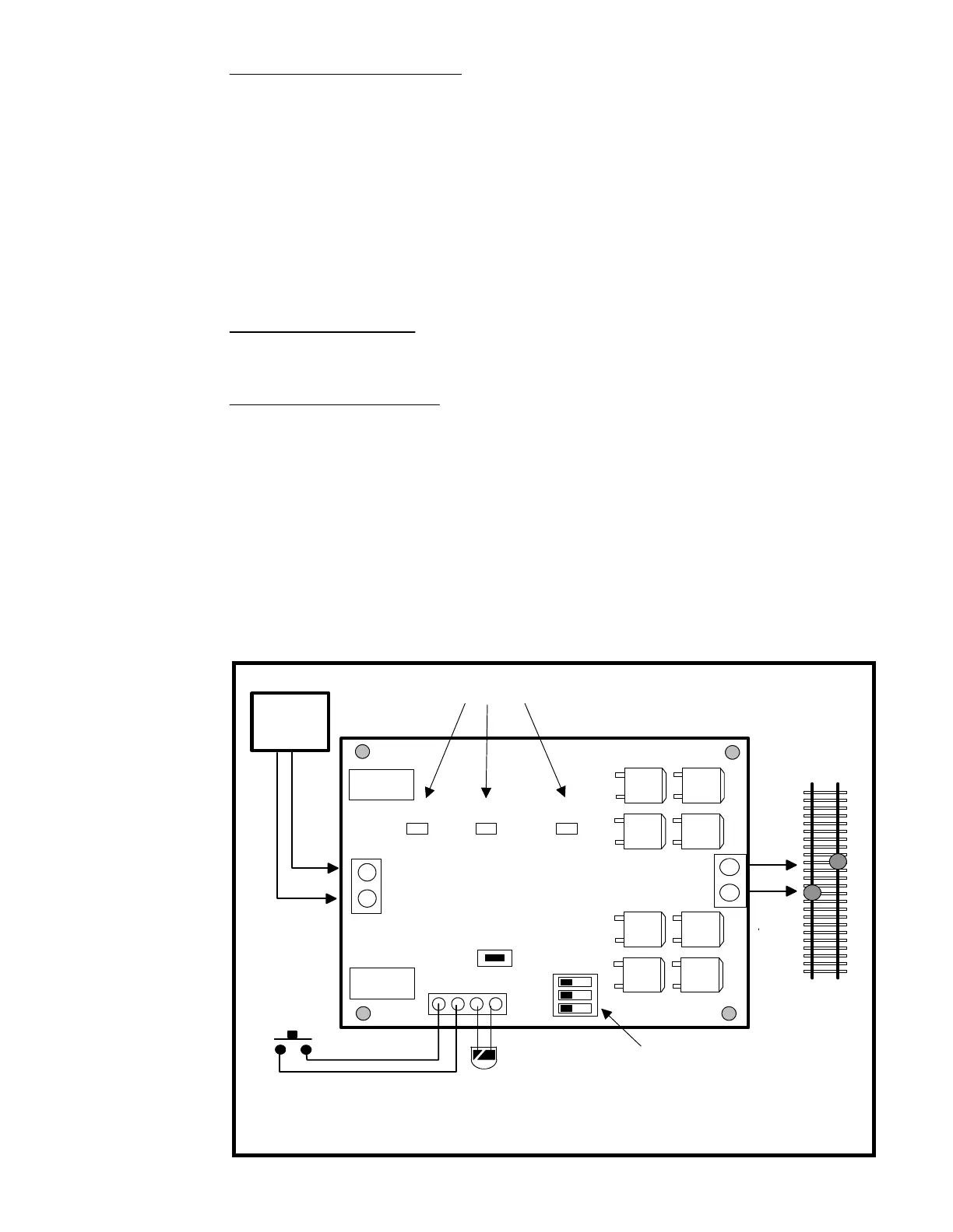
Indicator LEDs on the AR10:
SHORT - This red LED is off under normal operating conditions. It will light steadily (and both
green LEDs will be off) when the AR10 has removed power to the loop because it has
detected a short circuit or overload condition. The AR10 will attempt to restore power to the
track every 2 seconds[default setting] until the short circuit condition is corrected. This LED
will flicker rapidly when the SETUP button is pressed to indicate that the AR10 is ready to
accept programming commands.
NORMAL - This green LED indicates the loop track polarity is at its normal state
REVERSE - This green LED indicates the loop track polarity has reversed
Note: The above polarity indications are arbitrary. They are primarily used to indicate that the
polarity has automatically switched as trains enter and leave the loop.
Switches on the AR10:
TRIP CURRENT – Three switches that set the current trip level. See page 3 for a description.
Connections to the AR10:
MAIN TRACK - DCC power input from the DCC booster.
LOOP – DCC track power output terminal from the AR10 to the loop track.
[A] and [K] - You may connect an LED for use as a remote status indicator to terminals A and
K of the the AR10. This LED will duplicate the actions of the small SHORTLED mounted on
the AR10. Current limiting resistors are already mounted on the AR10 so all you need is an
LED. The cathode (minus polarity) of the LED should be connected to terminal K. Use the
diagram on below as reference for connecting this LED.
RST- You may connect an external pushbutton switch (normally open type) as a manual reset
to recover manually from a short circuit. The AR10 must be setup for manual reset for this
feature to work (see the following section on Fine Tuning the AR10).
**Last revised: 3 May 2020 Page 4 AR10
LEDS
MANUAL RESET
(optional)
REMOTE
LED
(optional)
Switches to set trip current
Must be momentary
pushbutton type switch
STATUS
TRACK
DCC
POWER
LOOP
1
2
3
SETUP
SHORT
REVERSE NORMAL
MAIN TRACK
LOOP

Related product manuals