EasyManua.ls Logo

NEC P554 - Page 4

NEC P554
10 pages
Print Icon
To Next Page IconTo Next Page
To Next Page IconTo Next Page
To Previous Page IconTo Previous Page
To Previous Page IconTo Previous Page
Loading...
NEC Display Solutions of America, Inc.
V554/P554 Installation Guide
55” LCD Display Rev 1.0
www.necdisplay.com
V554/P554 Page 4 of 10
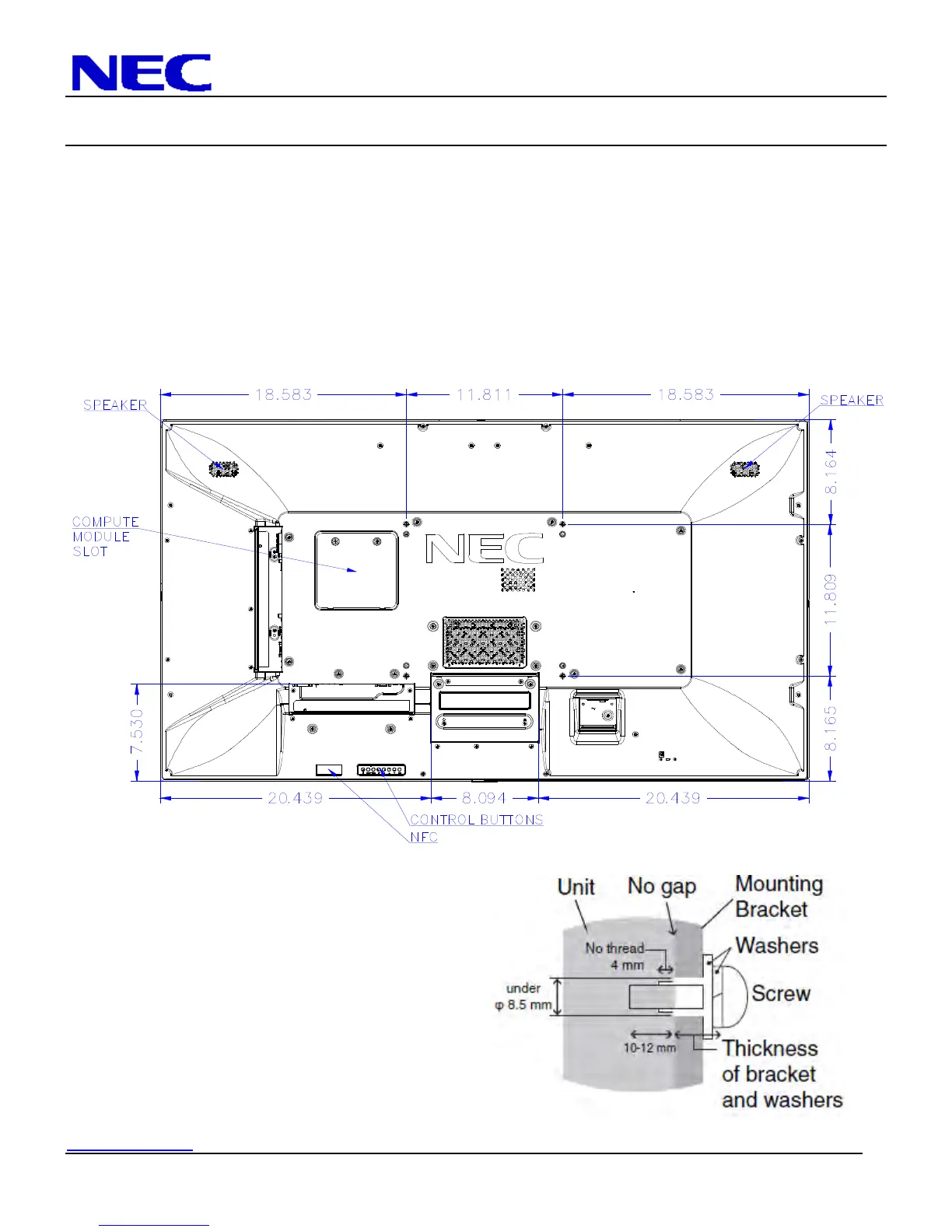
Display dimensions (cont.):

Related product manuals