EasyManua.ls Logo

NEC VT49 - Diagrams and Distance Charts; Ceiling Mounted Diagram; Desktop Diagram; Distance Chart for 4:3 Screens

NEC VT49
6 pages
Print Icon
To Next Page IconTo Next Page
To Next Page IconTo Next Page
To Previous Page IconTo Previous Page
To Previous Page IconTo Previous Page
Loading...
NEC Display Solutions of America, Inc.
VT49 Installation Guide
Ceiling Mounted and Desktop Rev 1.2
www.necdisplay.com VT49 Page 2 of 6
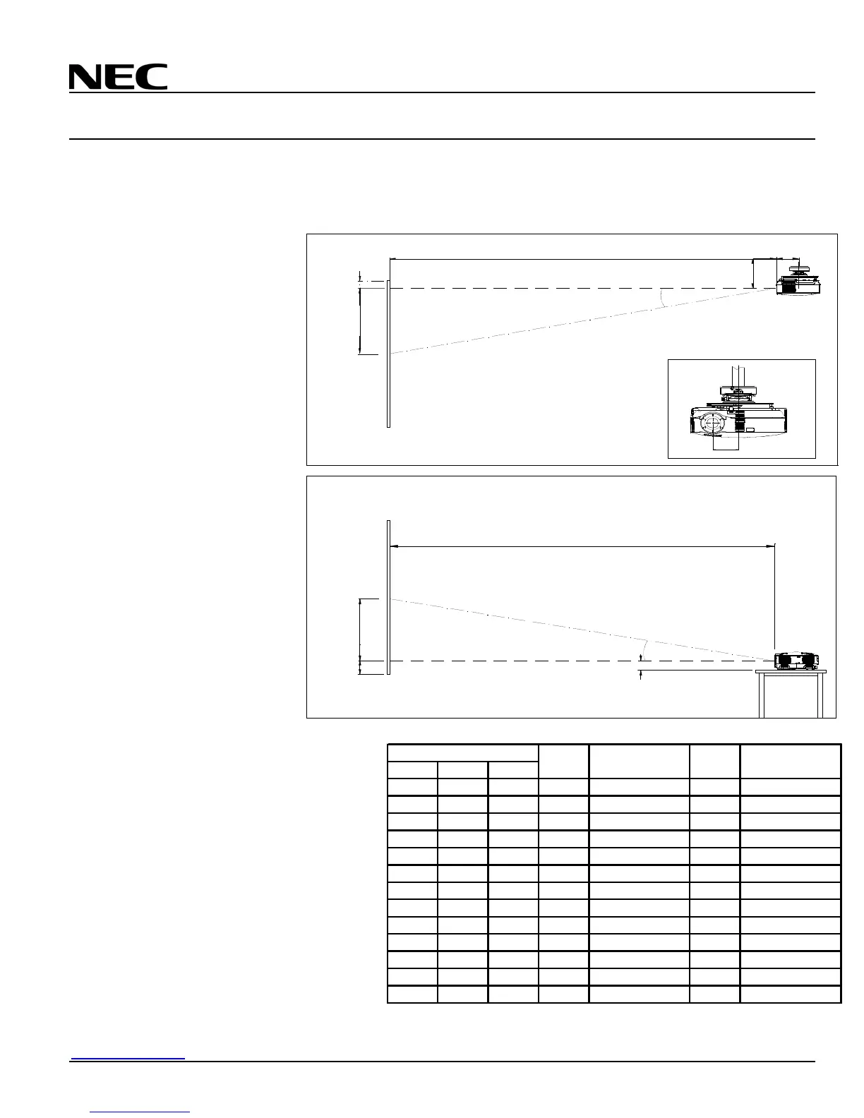
Diagrams and Distance Charts
The following shows the proper relative positions of the projector and screen. Refer to the table to determine the position of
installation.
Distances are in inches. For millimeters multiply by 25.4.
Ceiling Mounted
B
C
Lens Ctr
Screen Ctr
Throw Distance
Screen Top
5.26"
5.68"
Lens Offset From
Mount Pipe
3.27"
D
B
C
Lens Ctr
Screen Ctr
Throw Distance
Screen Bottom
2.57"
D
Desktop
Distance Chart for popular 4:3 screens
Screen Size (4:3)
Diag W H
inches inches inches inches inches
30 24 18 6 -3
60 48 36 13 -5
72 57.6 43.2 15 -6
84 67.2 50.4 18 -7
90 72 54 19 -8
100806021 -9
120967226 -10
150 120 90 32 -13
180 144 108 38 -16
200 160 120 43 -17
250 200 150 53 -22
300 240 180 64 -26
B C D α
inches degrees
43 8.6
86 8.5
104 8.4
121 8.4
130 8.4
144 8.4
173 8.4
217 8.4
260 8.4
434 8.4
289 8.4
362 8.4
Note: For screen sizes not indicated on the projection
tables, use the formulas on page 1.

Other manuals for NEC VT49

Related product manuals