EasyManua.ls Logo

nekos KL - Connection Diagram of the Station

Default Icon
12 pages
Print Icon
To Next Page IconTo Next Page
To Next Page IconTo Next Page
To Previous Page IconTo Previous Page
To Previous Page IconTo Previous Page
Loading...
Page 19
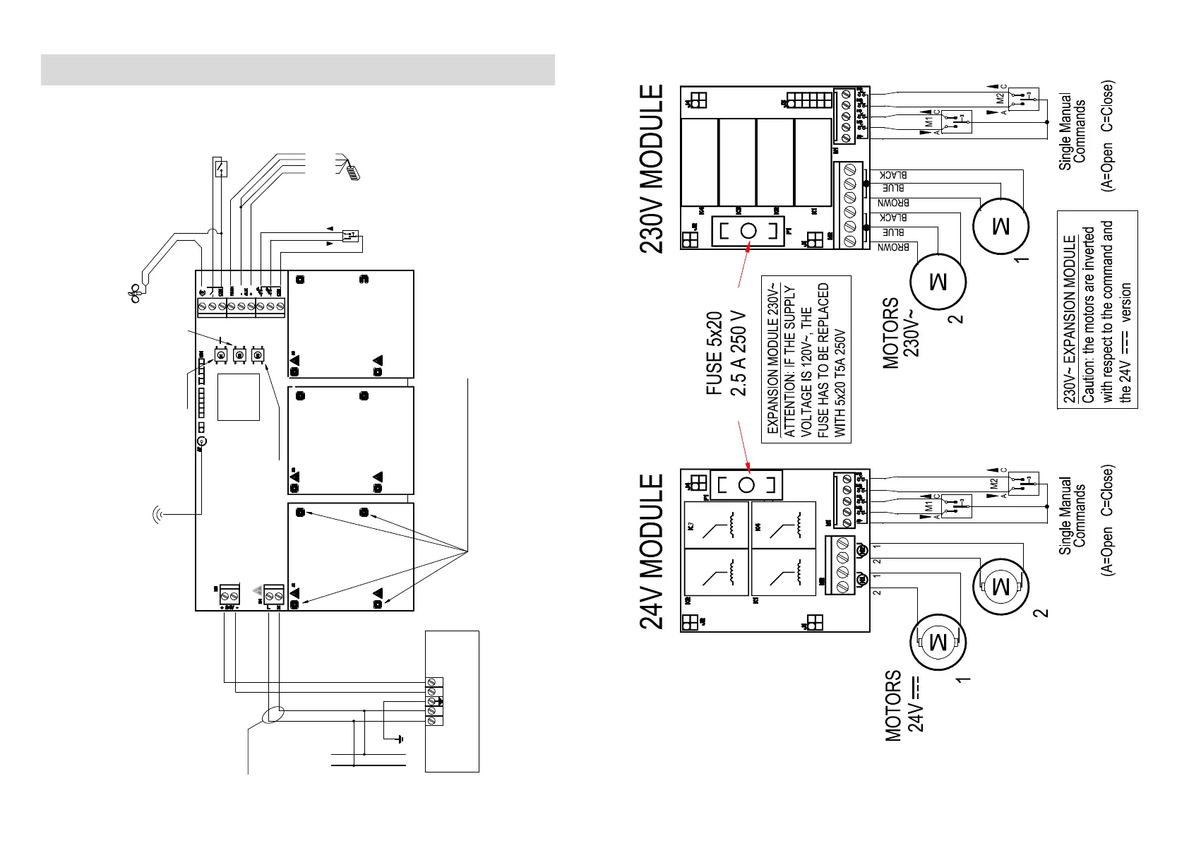
8. CONNECTION DIAGRAM OF THE STATION
NOTA: FOR THE CONNECTION OF MORE UNITS AMONG THEM OR IN CASE OF A SINGLE RAIN
SENSOR, PLEASE REFER TO MANUFACTURER.
Mother board schema
HEATED RAI N
SENSOR
BLACK
BLUE
RED
WIND SENSOR
BLUE
BROWN
NO / NC CONTACT
COMMAND
GENERAL
CA
TIMED THERMOSTAT
-VNL +V
POWER SUPPLY UNIT
110/230V~AC / 24 VDC
110/230 V~
LINE
+ V
- V
L
N
KEY -
+
OK
EXPANSION MODULE ATTACHMENTS
DISPLAY
GREEN
KEY +
KEY OK
RADIO REMOTE CONTROL ANTENNA
24V DC
110/230V~ 50/60 Hz
TIMER
CONNECT
ONLY KH . ..
50/60 Hz
Page 20
Expansion module schemes