EasyManua.ls Logo

Nice Pro-H - Page 39

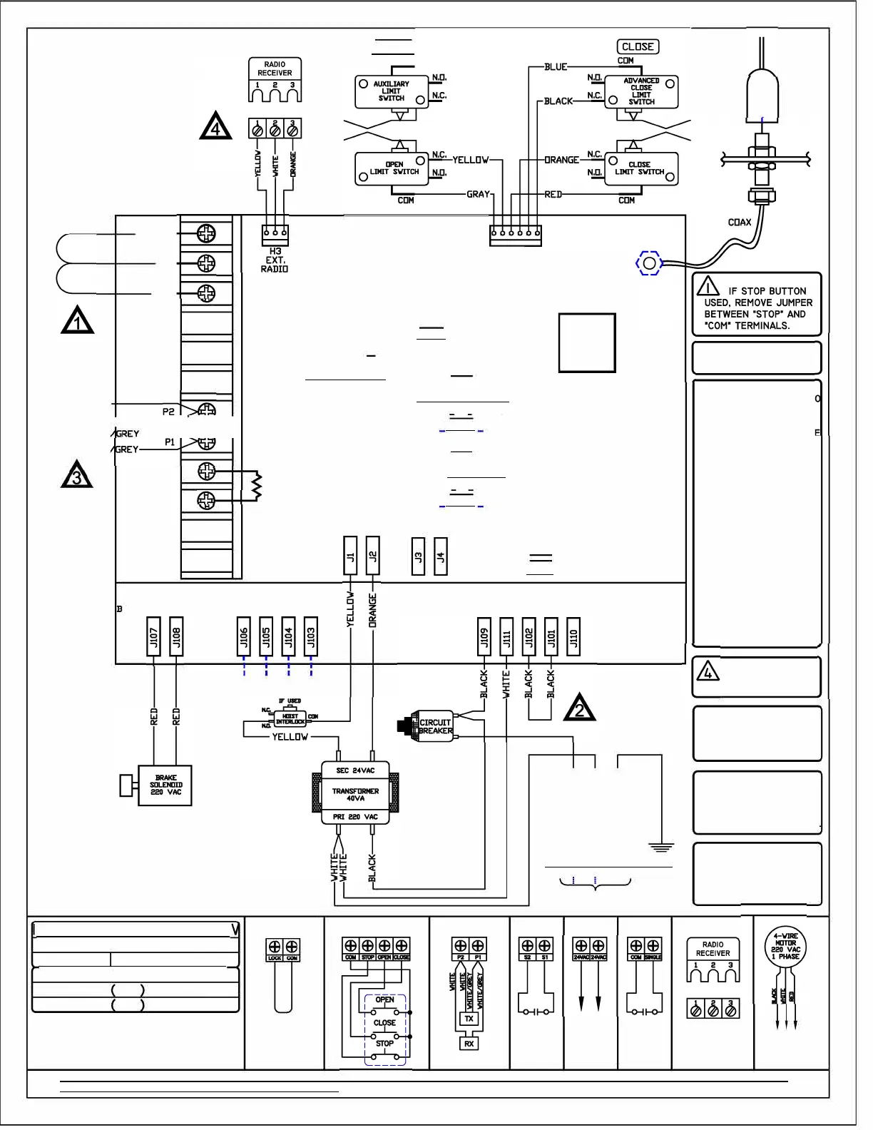
Nice Pro-H
44 pages
Print Icon
To Next Page IconTo Next Page
To Next Page IconTo Next Page
To Previous Page IconTo Previous Page
To Previous Page IconTo Previous Page
Loading...
cS7/i/i
I/S_z/IB
pP~4B/c
Si~_7]
7c
z~p
pBi
7_zB
zSiM_B






PS~B
PS~B
z
z
# /7

# /7

w/]B z_BiS= ~
ZLyHuZyHA
"%, +# , #, 
&*++,
$*, ,
(,
(, ", !,
!,  , ,
)',  , ,
qC
j

8d

7
=
P
pBi


_ScS~

zS~7P
7_zB
 
/_B
_B/wi
z~p
cS=z~p
~z
cS=z~p~ScBw <!

=B_/ iwBBwzB 
c~w =SwB7~Si < 
iII

] Pc

p~!


( !zB7


zB7(
T !zB7  T
T
II !zB7
T
) eDv9`{D )

p
 

%zB7
.
"
zB7
T
zB7 &zB7
T
) >Ea0k9`{D )

p~
 

# /7 77_B 7i~Bw
i4/w=
w/=S
wB7BSBw
I/_~+
wi ~~ScBw+
=B_/ i7_zB ~ScBw+
~ScBw ~7_zB+,
z/IB~pP~
cS= z~p+,
7_zB_ScS~+
pBi_ScS~+,
P
wpc
zBizw

z~p p4+
7_zB wB_/+,
pBiwB_/,
pBw,
c= c7 c4 c/ ___i
 
_!
 
=
,= "= (..=
%= ;3=
.= = =
= =
= 5=
!= = =3=
6= *.= =
1(= = .:=
.4= /=
= =
#9=
  

 - 



U U
 
^sR'Q
)= 8= = 0= = += =
-=
&=
=
= .=
= 07=
=
2=
,= =
= 0= <= = =


/i~Bii/

T
?ninwFfnF
 PF\frFw
 fV:1i1i
 fnjVnwF?rPn
5F1f|nwfV:1i1i
:nfp1V5_FfniVnwF?
|1JF?FV:F|f|5
:niiF:F?nr1i?r
JnwPF?nnwn:_n|F
VifnfFi1wfn?FVJ
fniVnwF?|1JF
?FV:F|1wFin
:niiF:F??nnw:1i
ni_5F:_n|F?5
:ni|1irwF||wF
1i?VJ:ni|1i
rwF||wFV|wFfnF?
5FJnwF?nnwwF1:PF|
J__:_n|Frn|VWni
?nnwwFFw|F|nJ__
nrFjrn|VVnj
inF*ni_niF
fniVnwF??FV:F:1i
5F:niiF:F?nr
1j?r
|Fni_VJ
ni5n1w?w1?Vn
V|in|F?
 ?ninwFfnF
wF|V|nwi_F||
Vi|1__ViNnj1$VwF
F_F:wW:F?NF

niFnwfnwF
 |F:ni?1w
|1JF?FW:F|VP1
in:ni1::1i5F
:njiF:F?n|V1i?|
 wFJFwn
 Vi|1__1Vni
f1i1_Jnw
1rrwnrwW1F|wNF
rwnF:nww1ViN|
$= '=


h3hAm[ 

QGXlKoxg2Xol;ol2YlG@QGxGYlY}txotxYG2xogX;2l2l}}Gg}Yl;2l@}Q2bblo6GxGtxo@;G@ox@Y};bo}G@ox}G@Kox2l@G}YOloxg2lK2;xGG;GtQGl}Gx
to}}G}}G}@YxG;xYGl2QoxY}2YolKxoggX;2l2l}}Gg}Xl;

Related product manuals