EasyManua.ls Logo

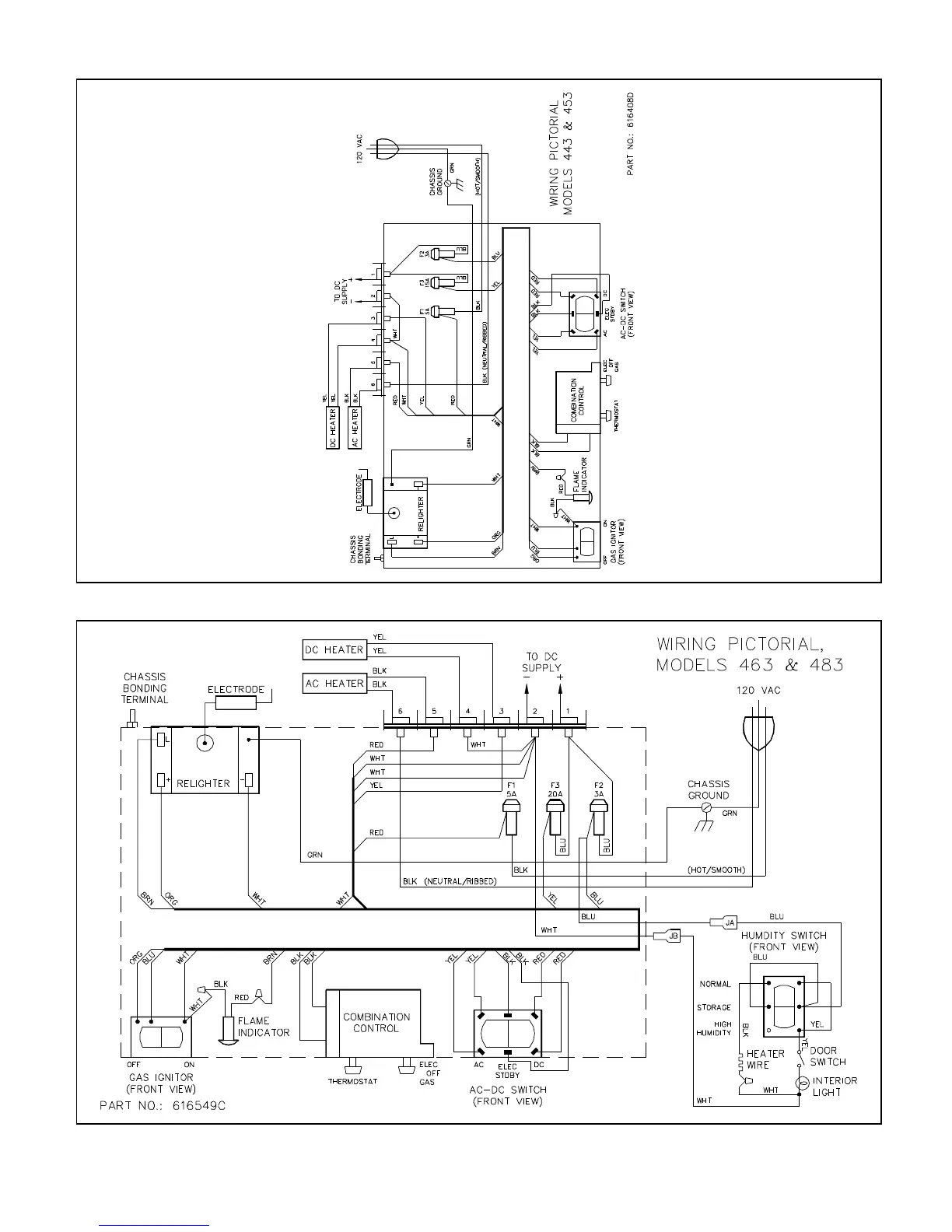
Norcold 482 - Wiring Pictorials

Norcold 482
30 pages
Print Icon
To Next Page IconTo Next Page
To Next Page IconTo Next Page
To Previous Page IconTo Previous Page
To Previous Page IconTo Previous Page
Loading...
B101
3-21

Related product manuals