EasyManua.ls Logo

Nordyne B6VMAX - Technical Data and Wiring Diagrams; Physical Dimensions and Component Identification

Nordyne B6VMAX
32 pages
Print Icon
To Next Page IconTo Next Page
To Next Page IconTo Next Page
To Previous Page IconTo Previous Page
To Previous Page IconTo Previous Page
Loading...
15
FIGURES & TABLES
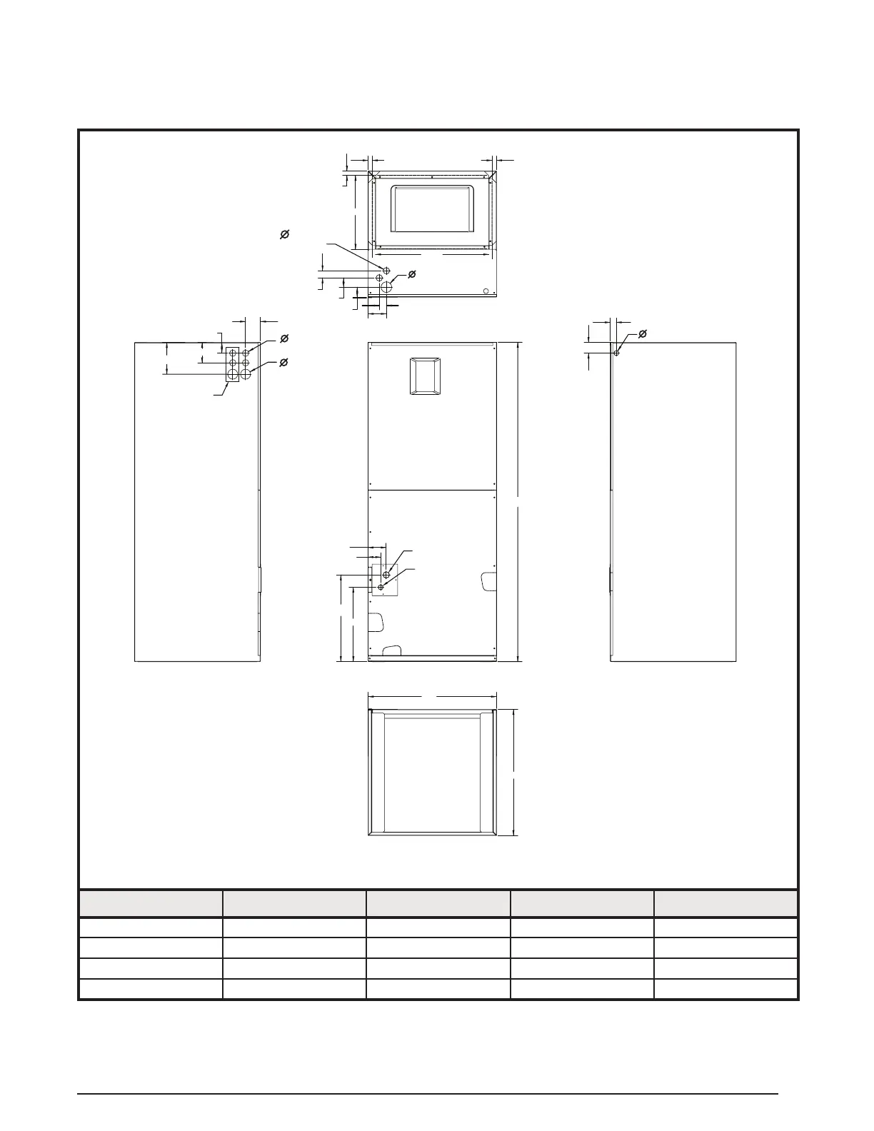
Figure 11. B6 Series Physical Dimensions
3/4”
3/4”
3/4”
13”
1 7/8" K.O.
11/8” K.O.
(typ.)
11/4”
15/8”
17/8”
11/4”
3 1/4”
2 5/8”
11/8” K.O.
(typ.)
13/4” K.O.
(typ.)
1 7/8”
3 5/8”
5 5/8”
DETAIL “D”
3 1/4”
2 1/4”
15 1/4”
13”
SUCTION
LIQUID
“W”
1 1/8”
1 7/8”
7/8" K.O.
“H”
22"
“A”
CABINET SIZE H W A DETAIL D
A 43-5/16 14-3/16 12-3/4 No
B 43-5/16 19-11/16 18-1/4 No
Tall B 49-5/16 19-11/16 18-1/4 No
C 55-15/16 22-7/16 21 Yes

Related product manuals