EasyManua.ls Logo

Nordyne B6VMAX - Page 30

Nordyne B6VMAX
32 pages
Print Icon
To Next Page IconTo Next Page
To Next Page IconTo Next Page
To Previous Page IconTo Previous Page
To Previous Page IconTo Previous Page
Loading...
30
711250B
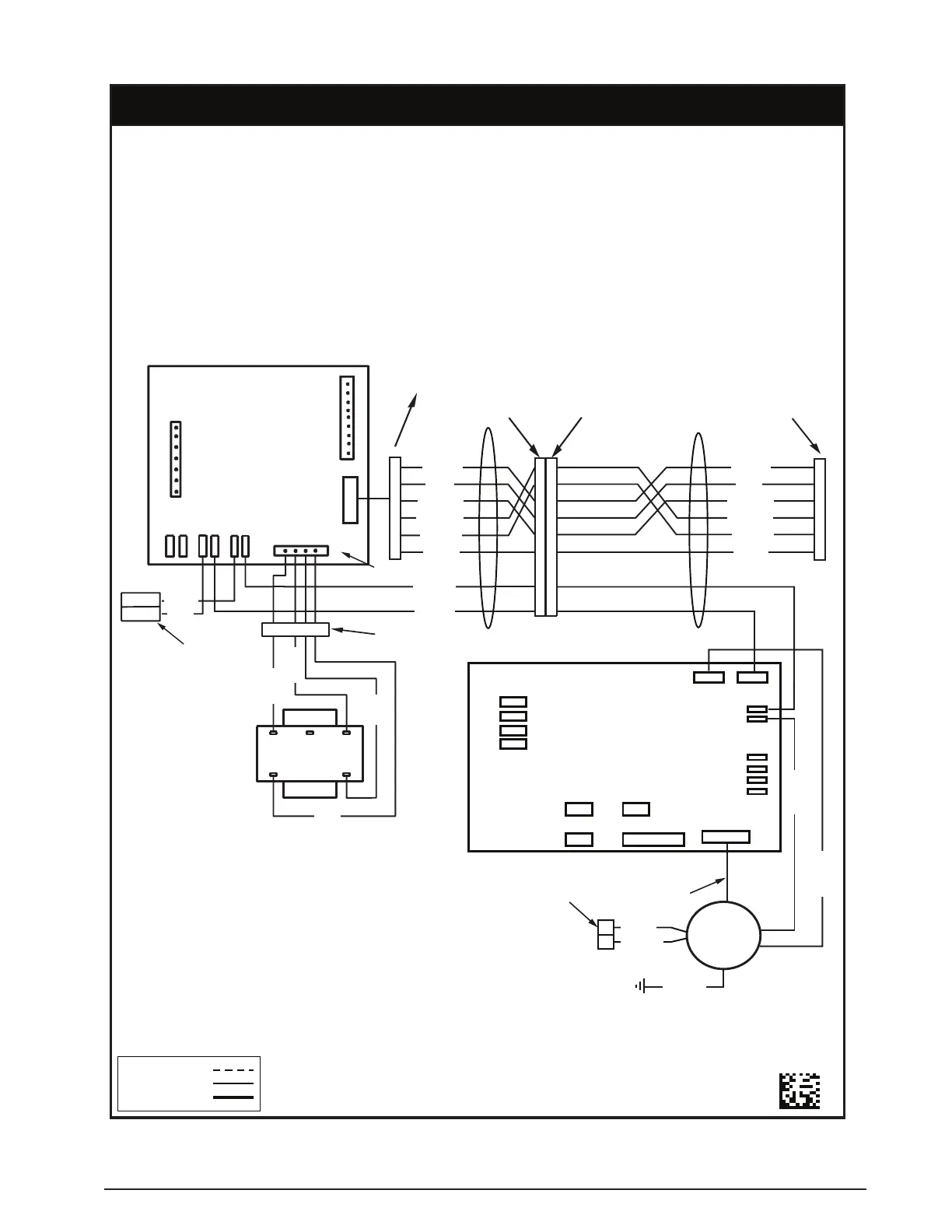
Air Handler with Variable Speed High Efficiency Motor
01/15
WIRING DIAGRAM
FIELD WIRING
LEGEND:
LOW VOLTAGE
HIGH VOLTAGE
(Replaces 711250A)
1
2
BLACK
HEATER PLUG
L
Y1
W2
W1
O
Y/Y2
G
R
C
L2
L1
EAL
HUM
L1 L2 C R
EXPANSION
WHITE
MOTOR
TEST
EXPANSION
MOTOR
W
Y/Y2
Y1
H
L2 OUTL2 IN
DEHUM
Y1
SENSOR
GND
C DX- DX+ R
BLACK
HARNESS
2
1
2 PIN CONNECTOR
IF PRESENT UNUSED
GRAY
BROWN
GREEN
240
24 V
208 COM
TRANSFORMER
RC
HARNESS
BLACK
WHITE
GRAY
RED
6-PIN PLUG
4-PIN PLUG
1 2 3 4 5 6
1 2 3 4 5 6 7 8 9
1 2 3 4 5 6 7 8 9
1 2 3 4 5 6
9-PIN PLUG
9-PIN HOUSING
6-PIN PLUG
BROWN
RED
ORANGE
YELLOW
GREEN
BLUE
BROWN
RED
ORANGE
YELLOW
GREEN
BLUE
RED
CUT WIRES TO REMOVE PLUG
HOUSING WHEN HEATER KIT
NOT INSTA LLED
NOTES:
1. The blower motor speed tap connection may not be as shown.
See the Installation Instructions.
2. Disconnect all power before servicing.
3. Transformer may havea dual voltage primary tap.
Match the tap position with the supply voltage used.
4. If the internal wiring is replaced, use only 105°C copper wire
of the same gauge.
BLACK
WHITE
Remarques
1. Le connecteur de vitesse du moteur du ventilateur peut
différer
de l’illustration. Consultez les Instructions d’installation.
2. Débranchez toutes les sources d’alimentation avant
l’entretien.
3. Le transformateur peut avoir un robinet principal à
double tension. Agencez la position du robinet au type
de tension de l’installation.
4. Si le câblage interne est remplacé, utilisez seulement un
fil de cuivre 105° C du même gabarit.
Figure 21. B6VM Wiring Diagram

Related product manuals