EasyManua.ls Logo

Norsup P20X/32 - Page 33

Default Icon
105 pages
Print Icon
To Next Page IconTo Next Page
To Next Page IconTo Next Page
To Previous Page IconTo Previous Page
To Previous Page IconTo Previous Page
Loading...
ENNL
FR
DA
SV
EN
DE
ZWEMBAD WARMTEPOMP TYPE PXZWEMBAD WARMTEPOMP TYPE PX
64
65
Onder voorbehoud van wijzigingen en (druk)fouten! GEBRUIKSAANWIJZING NORSUPWWW.NORSUP.EU Onder voorbehoud van wijzigingen en (druk)fouten!
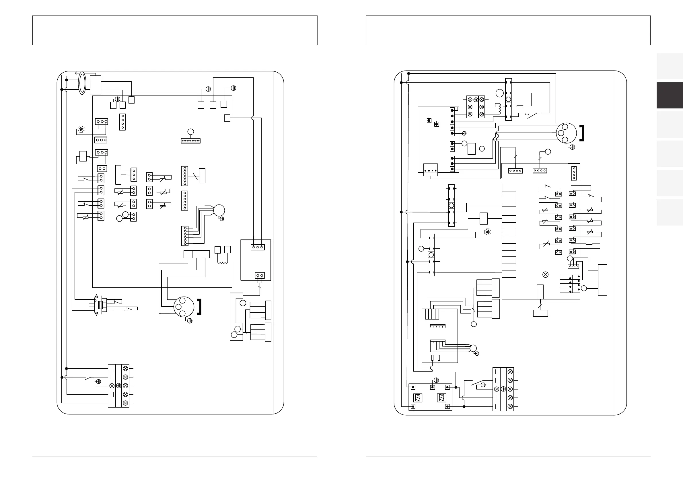
6.APPENDIX
6.1 Schakelschema
34
CODE˖20181126-0018
K2
N
1
3
24
5
6
7
8
01
N
L
N
N
N
N
N
4V
1
3
24
5
6
7
8
02
N
L
G/G
Geel
P
L
N
Rood
Blauw
$
*1'
9
%
3
:89
3
3(
$&1 $&/
/ /
&1
&1
&1
&1
&1
&1
3
3
/
1
8
9
:
$&,:0
COMP
8
9
:
U
W
V
Rood
Zwart
Wit
PTC
K2
N
N
N
1
3
24
5
6
7
8
03
L4
/
/
/
3
L
3
1
K1
L
N
N
P20X/32
K2
1
N
N
L
L
$&/RXW
$&1RXW$&1LQ
$&/LQ
(0,
CN1
FM1
ZL10
1
GND
485A1
12V
N
L
485B1
G/G
Wit
Zwart
CN4
L
/
4V
4
Rood
Zwart
Wit
Druksensor
SUT
CN9
3
RLY1
OUT2
OUT3
AC-N1
OUT4
OUT5
CN2
PC1004
CN8
4
CN13
A1A3A5A7A9
A11
t
5K
SUT LP
afgelegen
ON/OFF
A4A6A8A10
A12
A2
FS
HP
t
5K
IT
t
5K
CTET
t
50K
t
5K
OT
t
5K
AT
6.8K
CN11
A13
GND
GND
GND
GND
+12V
0~10V-OUT
PWM-IN
PWM-OUT
9
9
L
/
K1
EEV
5
LN
1
2
4
N
L
N
220-240V~/50Hz
NAAR
VOEDING
POMPEN
<10A
4
Controleur
Geel 485B-
Zwart GND
Rood 12V
Wit 485A+
WiFi
Zwart GND
Geel 485B-
Wit 485A+
Rood 12V
K1˖ Relais van compressor
SUT ˖ Aanzuigtemperatuur
AT ˖ Omgevingstemperatuur
COMP ˖ Compressor
CT˖ Spoeltemperatuur
FM˖ Ventilatormotor
IT˖ Inlaat watertemperatuur
LP ˖ Lage druk bescherming
OT˖ Uitlaat watertemperatuur
FS ˖ Doorstroomschakelaar
HP˖ Hoge druk bescherming
EEV ˖ Elektronische expansieklep
4V˖ 4-weg klep
ET ˖ Uitlaat temperatuur
K2˖ Relais van de pomp
/
HOHFWULFUHDFWRU
L
N
/
/
CODE
˖
20181126-0019P20TX/32
R
S
T
N
Rood
Zwart
Wit
Blauw
RS
T
N
R
N
4V
1
3
24
5
6
7
8
02
N
N14
N
N
N
N
N
N
K2
4V
N
R
1
3
24
5
6
7
8
01
L3(C)
L2(B)
L1(A) 11
14
12
PM
N
N14
R
R
R
4
Rood
Zwart
Wit
Druksensor
SUT
G/G
&203
8
9
:
8
9
:
K2
'ULYHUPRGXOHERDUG
DCN-IN
89:567
DCP-IN
DCN-OUT
DCP-OUT
B
A
GND
12V
CN602
GND
CN605
5V
JP601
HOHNWULVFKHUHDFWRU
5
6
7
Rood
Zwart
Wit
R
S
T
N
1
N
1
R
RST
DC+
DC1+
DC-
DC1-
EEV
5
CN9
3
RLY1
OUT2
OUT3
AC-N1
OUT4
OUT5
CN2
PC1004
CN8
4
A1A3A5A7A9
A11
t
5K
SUT LP
afgelegen
ON/OFF
A4A6A8A10
A12
A2
FS
HP
t
5K
IT
t
5K
CTET
t
50K
t
5K
OT
t
5K
AT
6.8K
CN11
A13
GND
GND
GND
GND
+12V
0~10V-OUT
PWM-IN
PWM-OUT
9
9
$ % & 1
1&%$
(0,
),
4
Naar voeding
380V/3N~/50Hz
CN1
FM1
ZL10
5
1
GND
485A1
12V
N
L
485B1
G/G
Wit
Zwart
CN4
Geel
4
Controleur
Geel 485B-
Zwart GND
Rood 12V
Wit 485A+
CN13
L
N
1
3
24
5
6
7
8
03
S
T
S
S
5
6 7
T
T
6
7
5
5
N
L1N
R
S
T
SPD
L2L3
N
N
K2
P
G/G
N
POMPEN
<10A
T
WIFI
Geel 485B-
Zwart GND
Rood 12V
Wit 485A+
K2˖Relais van de pomp
SUT˖Aanzuigtemperatuur
AT˖Omgevingstemperatuur
COMP˖Compressor
CT˖Spoeltemperatuur
FM˖Ventilatormotor
IT˖Inlaat watertemperatuur
LP˖Lage druk bescherming
OT˖Uitlaat watertemperatuur
FS˖Doorstroomschakelaar
HP˖Hoge druk bescherming
EEV˖Elektronische expansieklep
4V˖4-weg klep
ET˖Uitlaat temperatuur
PM˖Fasemonitor
SPD˖De GPD's
6.APPENDIX
6.1 Schakelschema
33
8:
LN
1
2
L
N
Rood
Blauw
Y/G
K2
CN21
RES1
CN29
OVT
CN30
HP
CN31
LP
CN13
HEAT
CN18
EMV
CN66
RY
CN11
FOUR
CN96
OT(Rood)
3/
3/
CN7
OAT
CN8
OPT
CN22
RES2
CN9
OHT
CN12
PH
FS LP
A B
RS485
CN15
LEV1
CN24
LEV2
AT(
Wit
)
4V
K2
$&/
$&1
L
N
*1'
A
B
reactor
EEV
5
*1'
COMP
8
9
:
U
W
V
Rood
Zwart Wit
FM
9
CODE˖20190409-0003
FILTER
L
Blauw
Brown
N
A
B
Rood
Wit
Geel
Zwart
$&/
$&1
IT(Blauw)
SUT(
Groen
)
CT(
Geel
)
Magnetische ring
HP
HP
EP
EP
HP
EP
Groen
t
50K
ET(Grijs)
DCFAN
CN97
SPS
CN2 CN1
2AC32I12WO1
L
N
P
N
220-240V~/50Hz
NAAR
VOEDING
POMPEN
<10A
CN99
PL
Rood
Wit
Zwart
PS
3
4
Geel 485B-
Rood 12V
Wit 485A+
Zwart GND
Zwart GND
Geel 485B-
Wit 485A+
Rood 12V
Brown
Blauw
t
5K
t
5K
P13X/32
t
5K
Controller
CN10
G
2
G
t
5K
t
5K
OT˖Outlet water temperature
4V˖4-weg klep
AT˖Omgevingstemperatuur
COMP˖Compressor
CT˖Spoeltemperatuur
FM˖Ventilatormotor
IT˖Inlaat watertemperatuur
LP˖Lage druk bescherming
FS˖Doorstroomschakelaar
HP˖Hoge druk bescherming
ET : Uitlaat temperatuur
EEV˖Elektronische expansieklep
SPS: Schakelende voeding
K2˖Relais van de pomp
EP: Uitlaatbescherming
SUT : Aanzuigtemperatuur
PS: Druksensor
WiFi
8:
LN
1
2
L
N
Rood
Blauw
Y/G
K2
CN21
RES1
CN29
OVT
CN30
HP
CN31
LP
CN13
HEAT
CN18
EMV
CN66
RY
CN11
FOUR
CN96
OT(Rood)
3/
3/
CN7
OAT
CN8
OPT
CN22
RES2
CN9
OHT
CN12
PH
FS LP
A B
RS485
CN15
LEV1
CN24
LEV2
AT(
Wit
)
4V
K2
$&/
$&1
L
N
*1'
A
B
reactor
EEV
5
*1'
COMP
8
9
:
U
W
V
Rood
Zwart Wit
FM
9
CODE˖20181217-0003
FILTER
L
Blauw
Brown
N
A
B
Rood
Wit
Geel
Zwart
$&/
$&1
IT(Blauw)
SUT(
Groen
)
CT(
Geel
)
Magnetische ring
HP
HP
EP
EP
HP
EP
Groen
t
50K
ET(Grijs)
DCFAN
CN97
SPS
CN2 CN1
2AC32I12WO1
L
N
P
N
220-240V~/50Hz
NAAR
VOEDING
POMPEN
<10A
CN99
PL
Rood
Wit
Zwart
PS
3
4
Geel 485B-
Rood 12V
Wit 485A+
Zwart GND
WiFi
Zwart GND
Geel 485B-
Wit 485A+
Rood 12V
Brown
Blauw
t
5K
t
5K
t
5K
P17X/32
t
5K
t
5K
Controller
OT˖Outlet water temperature
4V˖4-weg klep
AT˖Omgevingstemperatuur
COMP˖Compressor
CT˖Spoeltemperatuur
FM˖Ventilatormotor
IT˖Inlaat watertemperatuur
LP˖Lage druk bescherming
FS˖Doorstroomschakelaar
HP˖Hoge druk bescherming
ET : Uitlaat temperatuur
EEV˖Elektronische expansieklep
SPS: Schakelende voeding
K2˖Relais van de pomp
EP: Uitlaatbescherming
SUT : Aanzuigtemperatuur
PS˖Druksensor
CN10
G
2
G

Related product manuals