EasyManua.ls Logo

Nortec RH2+ - Mounting Procedure; Mounting Requirements

Nortec RH2+
7 pages
Print Icon
To Next Page IconTo Next Page
To Next Page IconTo Next Page
To Previous Page IconTo Previous Page
To Previous Page IconTo Previous Page
Loading...
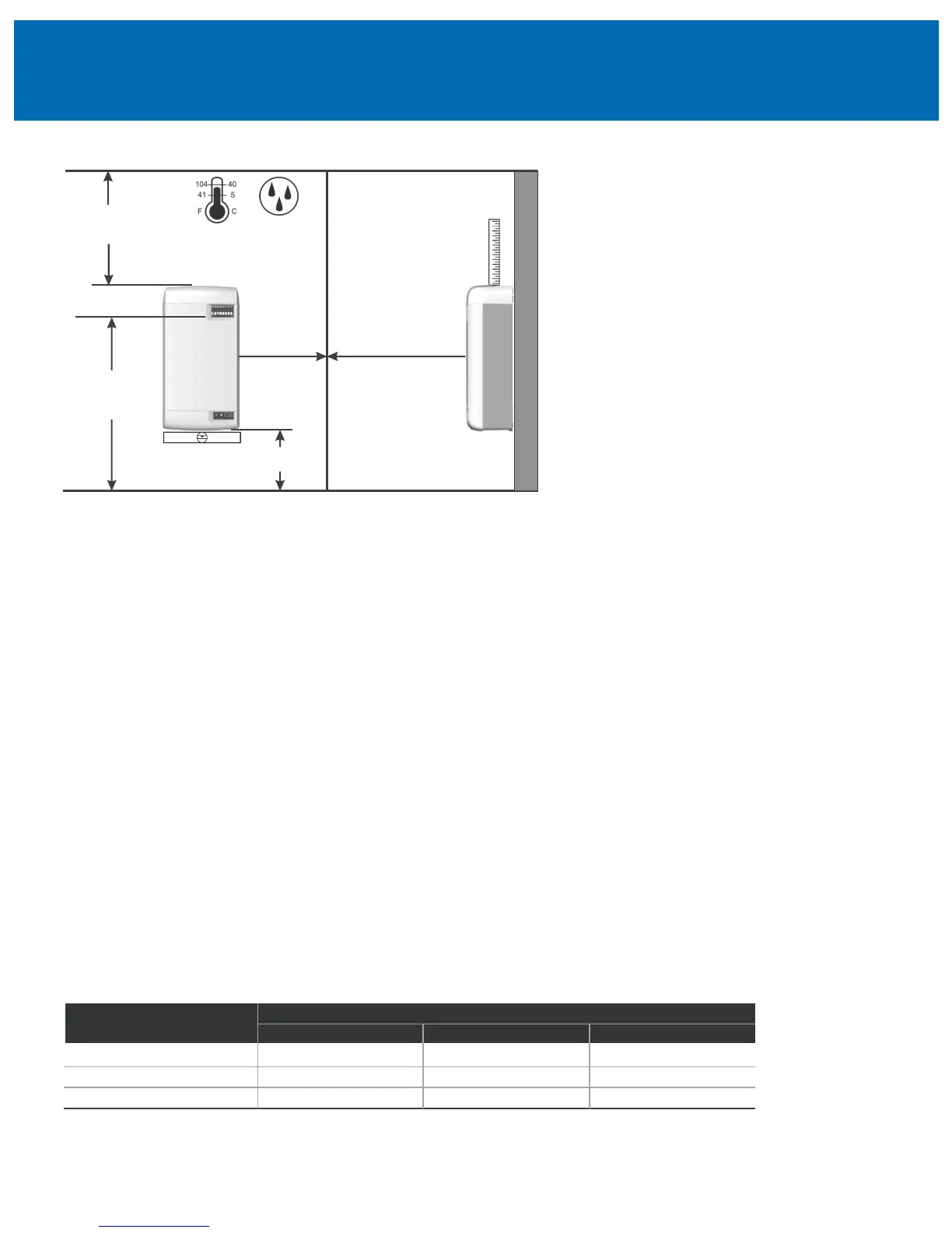
Mounting Procedure
1. The RH2 humidifier is wall mounted using a keyhole
located on the back of the humidifier.
2. Use #8 x 2 in. (5 cm) screws mounted into 2x4 studs
or better if there is drywall or other spacers. 2 screws
are needed, one for hanging the unit and one for
securing it so it will not lift off the keyhole.
3. Install the top screw so that 1/4 in. (6 mm) is exposed.
Raise the unit and place the screw head through the
keyhole.
4. Make sure the unit is level and then insert and tighten
the second screw through the bottom hole. Tighten
the top screw.
Mounting Requirements
Nortec does not accept responsibility for installation
code violations.
1. Install as close as possible to the steam distributor.
2. Minimize the use of turn or bends in the steam line as
much as feasibly possible.
3. Mount on a suitable wall or vertical surface. Do not
sit the on the floor, where freezing can occur, or on
vibrating surfaces.
4. Allow clearances for plumbing and electrical
connections. Consult local and national codes prior
to final location and installation.
5. Install only in areas with ambient temperature 41-
104°F (5 – 40°C), and relative humidity 5 - 95% (non-
condensing).
6. When possible, mount the RH2 humidifier at a height
convenient for servicing.
Side clearance
for space models
only, see table
36 in. (92 cm)
duct model
min. front clearance
Additional front clearance
for space models,
see table
24 in.(61 cm)
min. height
Mount humidifier
level
As close as
possible to steam
distributor
5-95%
Overhead clearance
for space models
only, see table
7 ft (2.1 m)
min. height
for space
models only.
Humidifier Output lb (kg)
Side in. (cm)
<4 (1 .8)
12 (30)
12 (30)
6 (2 .7)
16 (40)
18 (46)
8 (3. 6) 18 (46) 18 (46)
36 (92)
42 (107)
48 (120)
Additional Clearance for Space Models Only
Overhead in. (cm)
Front in. (cm)
Mounting

Other manuals for Nortec RH2+

Related product manuals