EasyManua.ls Logo

NorthStar e300 - Page 43

Default Icon
48 pages
Print Icon
To Next Page IconTo Next Page
To Next Page IconTo Next Page
To Previous Page IconTo Previous Page
To Previous Page IconTo Previous Page
Loading...
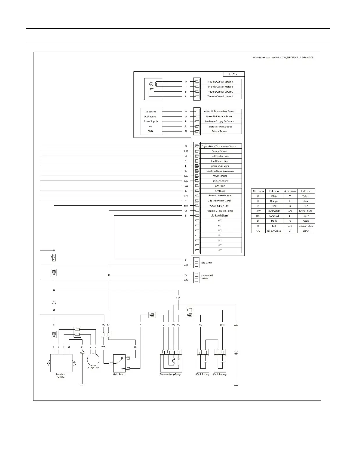
114593(804313) and 114594(804314) Electrical Schematic Diagram
43