EasyManua.ls Logo

NTI TFTN150 - Page 11

Default Icon
116 pages
Print Icon
To Next Page IconTo Next Page
To Next Page IconTo Next Page
To Previous Page IconTo Previous Page
To Previous Page IconTo Previous Page
Loading...
TFTN 085-199 Installation and Operation Manual
11
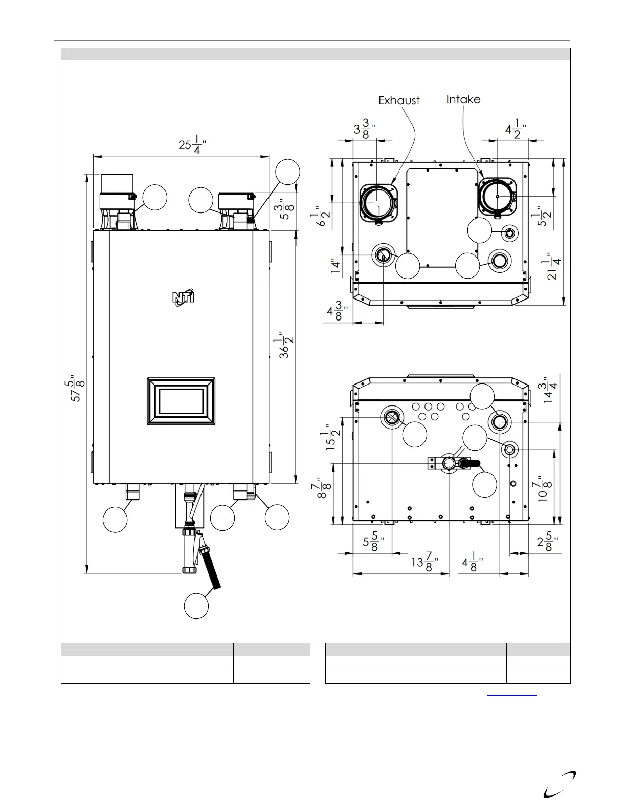
Figure 2-4 Boiler Dimension (TFTN340-399)
Connection/Description
Size
Connection/Description
Size
A Central Heating Supply
1-1/2 in.
C Gas Inlet
3/4 in.
B Central Heating Return
1-1/2 in.
D Condensate Drain
*
* The condensate trap is shipped separately with the boiler, and must be field installed; see section 6.0.
C
A
B
D
A
B
C
D
A
B
B
A
C
C

Other manuals for NTI TFTN150

Related product manuals