EasyManua.ls Logo

NuTone LA-52 Series

NuTone LA-52 Series
12 pages
To Next Page IconTo Next Page
To Next Page IconTo Next Page
To Previous Page IconTo Previous Page
To Previous Page IconTo Previous Page
Loading...
CARACTERISTICAS OPCIONALES
PARA UTILIZAR EL CARILLON MUSICAL CON
UN SISTEMA DE RADIOINTERCOMUNICACION
N U T O N E
Si se desea, se puede utilizar el carillón musical con un
sistema de radiointercomunicación NuTone. La señal del
carillón anulará la radiointercomunicación pero no
desconectará la fuente de música.
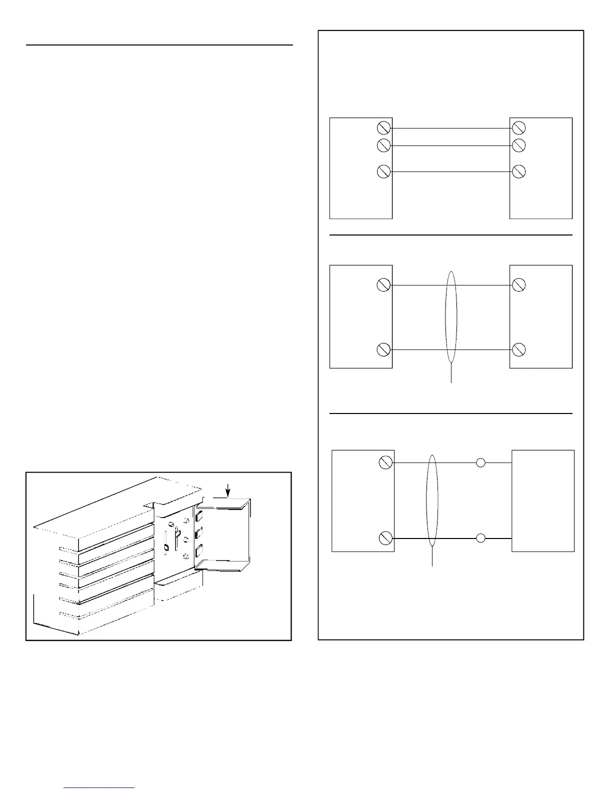
Vea el siguiente diagrama del cableado que
corresponda al sistema de radiointercomunicación que se
esté utilizando. Conecte los hilos (utilice NuTone IW-2) a
los bornes de la placa de circuito impreso del carillón
musical ubicada dentro de la caja del carillón.
Para ajustar el volumen del carillón para que se pueda
oír por encima de la radiointercomunicación, utilice un
destornillador para girar el control embutido ubicado debajo
de los bornes I-COM en la placa de circuito impreso.
PARA UTILIZAR EL CARILLON MUSICAL CON
UN ALTAVOZ EXTERNO
Si no tiene un sistema de radiointercomunicación NuTone
pero le gustaría que el carillón musical se oyera en otra sección de
la casa, se puede utilizar un altavoz externo con el carillón
musical. Nota: El altavoz se compra separadamente a NuTone.
Utilice un altavoz de montaje en superficies si es necesario
oír el carillón musical en otra habitación de la casa.
O bien, si es necesario oír el carillón musical en la puerta
principal, utilice un altavoz que incluya un botón en esa ubicación.
NOTA: Si se utiliza un altavoz que incluye un botón,
habrá que añadir el diodo al botón.
Conecte los bornes del altavoz a la placa de circuito impreso
del carillón musical al ALTAVOZ + Y ALTAVOZ - dentro de la caja
del carillón. No hay que tener en cuenta la polaridad; conecte
cualquiera de los bornes del altavoz a cualquier borne de los
ALTAVOCES del carillón musical.
CABLEADO DEL CARILLON CON EL SISTEMA DE
INTERCOMUNICACION
MODELOS IM-3000,
IM/IMA-4000 OR IM-5000
MODEL0 IM-2003
CHIME
IW-2
IW-2
MATRIZ DEL
SISTEMA DE INTER-
COMUNICATCON
CARILLON
MATRIZ DEL
SISTEMA DE INTER -
COMUNICATCION
I-COM + BLANCO
SPKR – NEGRO
}
E N T R A D A
D E L
C A R I L L O N
I-COM +
ENTRADA
(COBRE)
(AZUL)
NEUTRO
(CENTRO)
(GRIS)
ALTAVOZ –
MODELO IMA-516
CARILLON
MATRIZ DEL
SISTEMA DE INTER-
COMUNICATCION
I-COM +
CARILLON
I-COM –
CARILLON
SPKR –
TORNILLO DE
PUESTA A
TIERRA DEL
BASTIDOR
METALICO
(ROJO/BLANCO
IMA 516)
FIGURA 7
T O N E
T E M P O
V O L U M E
E
D
C
B
A
5
4
3
2
1
T U N E
T E S T
PONGA
AQUI LA
ETIQUETA
CONMUTADORES
SELECTORES
AJUSTADOS EN 2D,
“JINGLE BELLS”
PUERTA

Related product manuals