EasyManua.ls Logo

NuTone VX550CC - For All Models; Vacuum Power Control; Debris Pail Emptying Indicators; Control Panel Diagram A

NuTone VX550CC
22 pages
Print Icon
To Next Page IconTo Next Page
To Next Page IconTo Next Page
To Previous Page IconTo Previous Page
To Previous Page IconTo Previous Page
Loading...
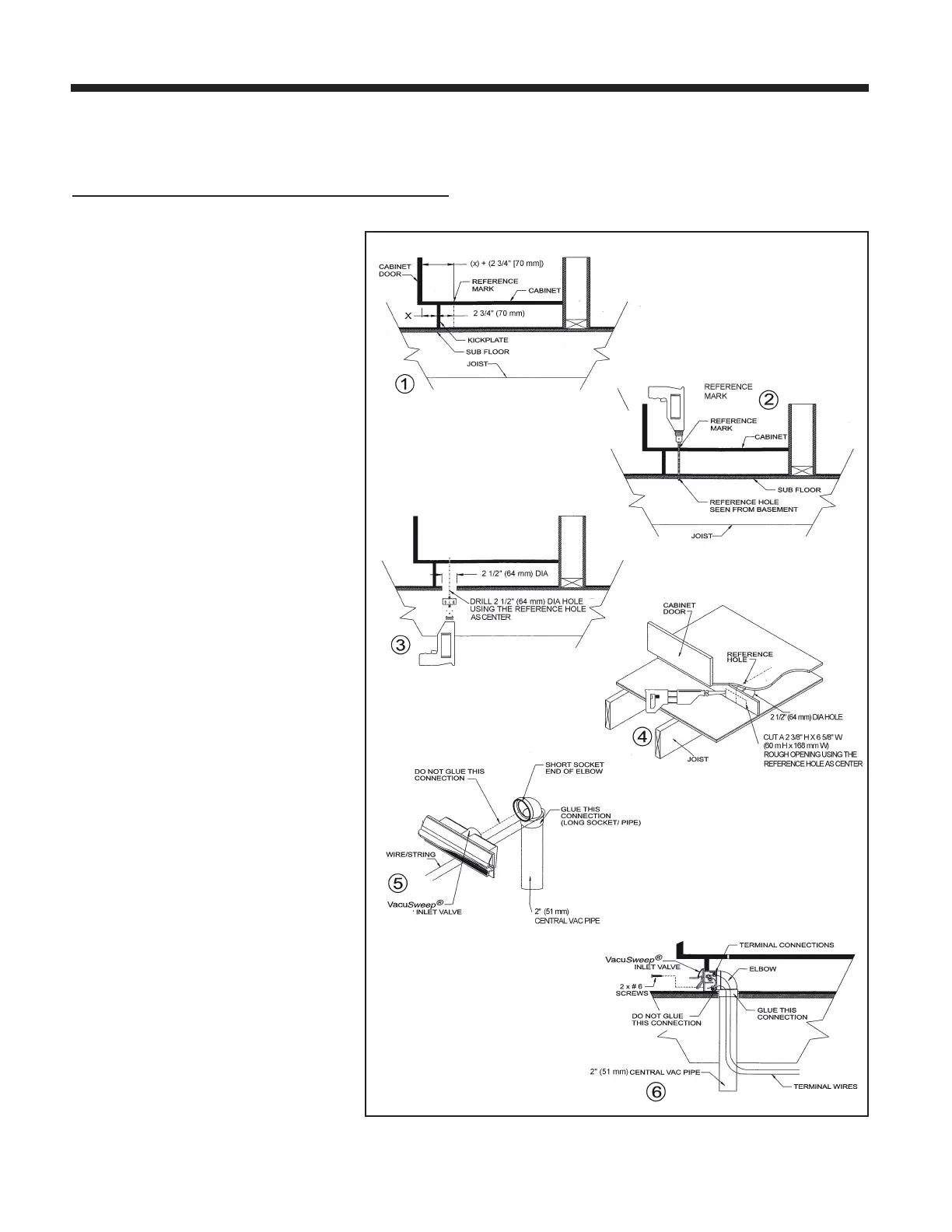
CONNECTION FROM BELOW
Refer to Figure 24.
1. Turn the power to the vacuum unit OFF.
Measure distance (X) between the
kickplate face and the inside edge of the
cabinet. Then add 2¾” (70 mm) to the
measured distance. Refer to Figure 24-1.
Measure out the new distance
(X + 2¾” [70 mm]) from the cabinet door,
to the reference mark.
2. Drill a small reference hole straight
down through to the basement. Refer to
Figure 24-2. Locate the reference hole
in the basement and verify that there are
no obstructions within 2” (51 mm) of
either side and 4” (102 mm) behind.
3. Cut a 2½” (64 mm) diameter hole from
the basement up into the base of the
counter using the reference hole as a
center. Refer to Figure 24-3.
4. Using the reference hole as a center, cut
a 2 ⅜” H x 6 ⅝” W (60 mm H x 68 mm W)
rough opening in the kickplate face.
Refer to Figure 24-4.
5. Glue the long socket of the tight elbow
(part no. V382XS) onto a section of
2” (51 mm) central vacuum tube. Make
the terminal connections to the
VacuSweep Inlet Valve by sliding the
low-voltage wire into wire clips. Turn the
power to the vacuum unit ON to test the
connection. After successful completion
of the test, turn power to the vacuum
unit OFF. Wrap a piece of wire/string
around the pipe. Using the wire/string to
temporarily hold the pipe and elbow in
place, insert the VacuSweep Inlet Valve
into the cabinet base and elbow. DO
NOT glue this connection (Designed for
friction fit). Refer to Figure 24-5.
6. Remove the wire/string. With the door in
an open position, secure the
VacuSweep Inlet Valve to the cabinet
base using no. 6 screws. Refer to Figure
24-6. Ensure that the spring on the
electrical connector has 1/8” (3 mm)
clearance to rough opening. Continue
with remainder of central vacuum
connections. When the vacuum system
is complete, turn the power to the
vacuum unit ON.
page 12
FIGURE 24
VACUSWEEP
®
INLET VALVE INSTALLATION
CONNECTION FROM BELOW
AD0045A

Other manuals for NuTone VX550CC

Related product manuals