EasyManua.ls Logo

Oasis P1PVCDKY - Cleaning and Sanitising Procedures

Oasis P1PVCDKY
14 pages
Print Icon
To Next Page IconTo Next Page
To Next Page IconTo Next Page
To Previous Page IconTo Previous Page
To Previous Page IconTo Previous Page
Loading...
P1PVKY / P1PVCDKY
Installation & Service Instructions
030099-347 pg 13 of 14 © Copyright 2007 OASIS Corporation
Cleaning and Sanitising Instructions:
This procedure should be used for initial cleaning prior to commissioning and also for on-site
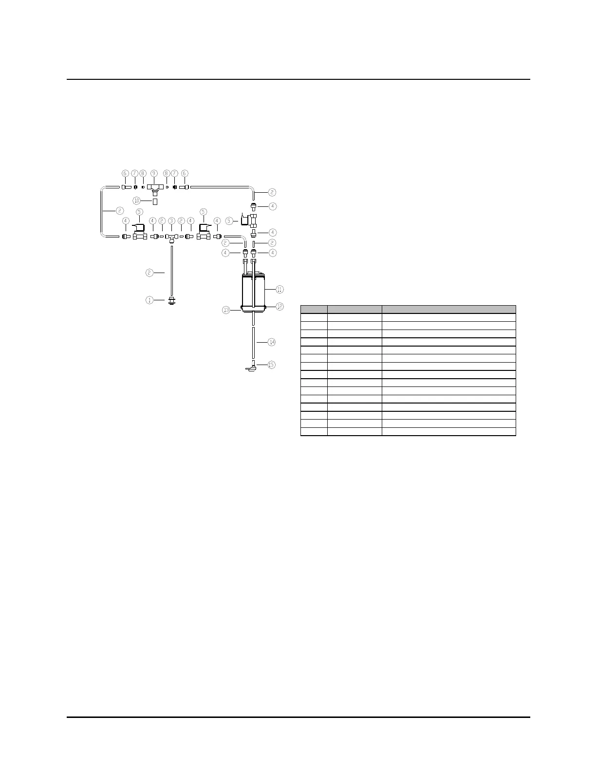
sanitization. The diagram below illustrates the water circuit used in all PV-DC model coolers:
NoPart NoDescription
1028913-002JG FITTING, BULKHEAD CONNECTOR
2029959-002TUBING, 1/4"
3029199-003JG FITTING, TEE PIECE, 1/4"
4034277-002JG FITTING, 1/4" BSP
5034613-001SOLENOID VALVE 230V
6030552-101JG FITTING, 3/8" TO 1/4" REDUCER
7028672-001CARTRIDGE, HALF SET
8035351-002CHECK VALVE
9034663-001WATER OUTLET MOULDED
10034625-001SPOUT, WATER OUTLET
11034506-001COOLING TANK, HEAD
12030858-407O-RING
13034507-002COOLING TANK, BASE
14035023-001DRAIN TUBE, 3/8" ID
15033970-003DRAIN VALVE ASSY
Equipment:
Household bleach (5% sodium hypochlorite)
Mild soap solution
Plastic bucket
One 12” length of ¼”OD plastic tubing
Preparation of Filter Cleaning Cartridge:
In order to get cleaning solution into contact with all of the water-contact surfaces it is
recommended that you prepare a filter cleaning cartridge. This should consist of an empty
filter housing and head assembly (i.e. does not contain a filter media). Proprietary systems are
available from the major reputable suppliers of fittings which have ¼ push-fit inlet and outlet
suitable for use with the tubing contained in OASIS coolers.
To prepare the cleaning cartridge, place 1 ml (1/4 tsp) of the sodium hypochlorite solution into
the empty housing and then re-fit the head
Sanitisation Instructions:
Temporarily disconnect the water cooler from the mains water supply

Related product manuals